Dieses Wohnbeispiel ist Teil des Bauvorhabens GARTENRESIDENZEN

Große Gartenwohnung über zwei Etagen mit eigenem Aufzug

  • Adresse
    Gartenstr. 18, 14169 Berlin / Zehlendorf
  • Wohntyp
    Maisonettewohnung
  • Preis
    2.479.000 € (zzgl. Provision)
  • Provision für Käufer
    3,57%
  • Zimmeranzahl
    5
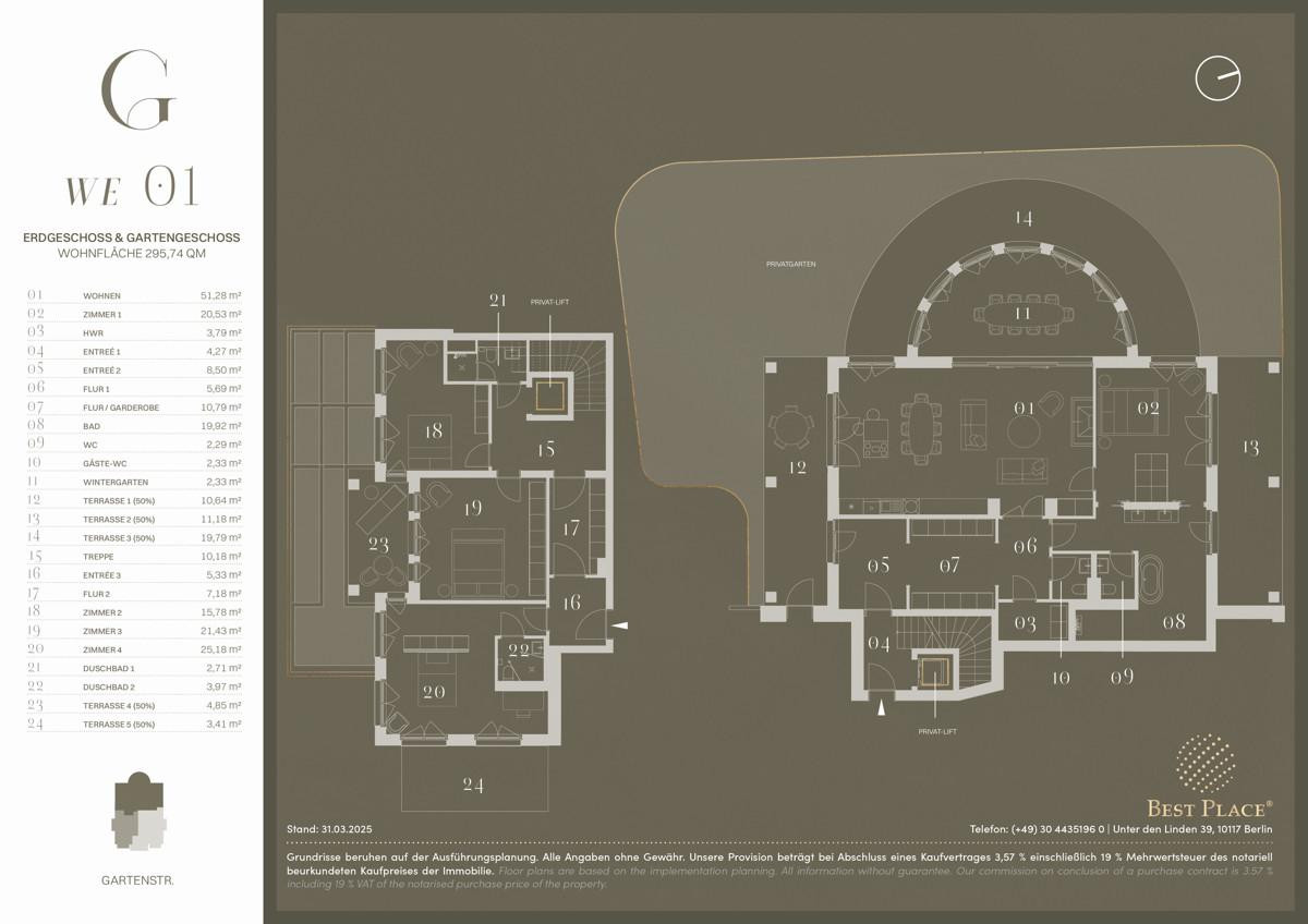
  • Wohnfläche
    295,74 m2
  • Baujahr
    2024
  • ID
    290296
  • Anbieter Objekt-ID
    GART-WE01

Merkmale

  • Befeuerung: Elektro
  • Garten bzw. Gartennutzung
  • Personenaufzug
  • Tiefgaragenstellplatz

Lage

Auf der Karte anzeigen

•Zehlendorf-Zentrum
•ruhige Nebenstraße zum Teltower Damm
•Supermärkte, Bio-Läden, Cafés, Bäckerei, Restaurants in unmittelbarer Nähe
•300 m bis zum S-Bahnhof Zehlendorf
•700 m zur Zehlendorfer Welle mit zahlenreichen Einkaufsmöglichkeiten
•10 Autominuten bis zur Fischerhütte am Schlachtensee
•18 Autominuten zum Golf- und Land-Club Wannsee
•20 Minuten zum Ku'damm

Ausstattung

•Offener Wohn-, Koch- und Essbereich mit Zugang zur Terrasse, optionalem Kamin und Wintergarten
•Master Bedroom mit Ankleidebereich und Badezimmer en Suite
•Bedroom 2 mit Badezimmer en Suite, Ankleide und Zugang zur Terrasse
•Bedroom 3 mit Ankleidebereich und Zugang zur Terrasse
•Bedroom 4 mit Zugang zur Terrasse
•Badezimmer mit bodengleicher Dusche
•Markensanitär mit Design-Linien
•Echtholzparkett und Fußbodenheizung
•Aufzug in der Wohnung
•Privatgarten
•Tiefgarage

Beschreibung

Diese außergewöhnliche Garten-Maisonette verfügt über zwei Gartenbereiche und einen internen Aufzug, der nur in dieser Einheit die beiden Ebenen miteinander verbindet. Auf der Gartenebene ist der offene Wohn-, Koch- und Essbereich mit Kamin und Zugang zum Wintergarten ein absolutes Highlight. Im Wintergarten lassen sich die bodentiefen Fenster vollständig zum Garten öffnen. Alles wirkt offen und modern. Sie können sich frei entfalten. Auf dieser Ebene haben Sie ein Master Bedroom mit Ankleidebereich und Badezimmer en Suite. Über die innenliegende Treppe oder den Aufzug erreichen Sie die zweite Ebene mit drei schön proportionierten Schlafzimmern samt Zugang zur Terrasse und zum zweiten Gartenbereich. Freuen Sie sich auf ein einmaliges Wohnambiente.

Energienachweis

Energieausweistyp: Bedarfsausweis
Gültigkeit: 2031-11-22
Endenergiebedarf: 36
Energieträger: ELECTRICITY
Energieklasse: A
36 kWh/(m²*a)
Energieeffizienzklasse A
  • A+
  • A
  • B
  • C
  • D
  • E
  • F
  • G
  • H
  • 0
  • 25
  • 50
  • 75
  • 100
  • 125
  • 150
  • 175
  • 200
  • 225
  • > 250

Der Finanzierungsrechner für Ihren Wohnkredit

Mit unserem Finanzierungsrechner kannst du schnell und bequem eine Finanzierung für deine Immobilie berechnen.

Finanzierungsbeispiel

Eigenkapital: 495.800 €
Sollzinsbindung: 10 Jahre
Tilgungsrate: 1 %
Monatsrate

8.313 €

Dieses Wohnbeispiel ist Teil des Bauvorhabens
GARTENRESIDENZEN

Anbieter kontaktieren
Pflichtfelder *

Wir behandeln deine Daten vertraulich. Mit dem Absenden erklärst du dich mit der Verarbeitung deiner Anfrage gemäß unserer Datenschutzerklärung und AGB für Verbraucher:innen einverstanden.

Anbieter