Dieses Wohnbeispiel ist Teil des Bauvorhabens Luisen 45

Exklusiv über den Dächern der Hauptstadt: stilvolles Wohnen mit XXL-Terrasse und zwei Bädern

  • Bezugsfertig
  • Nur noch wenige Einheiten!
  • Adresse
    Luisenstraße 45, 10117 Berlin / Mitte
  • Wohntyp
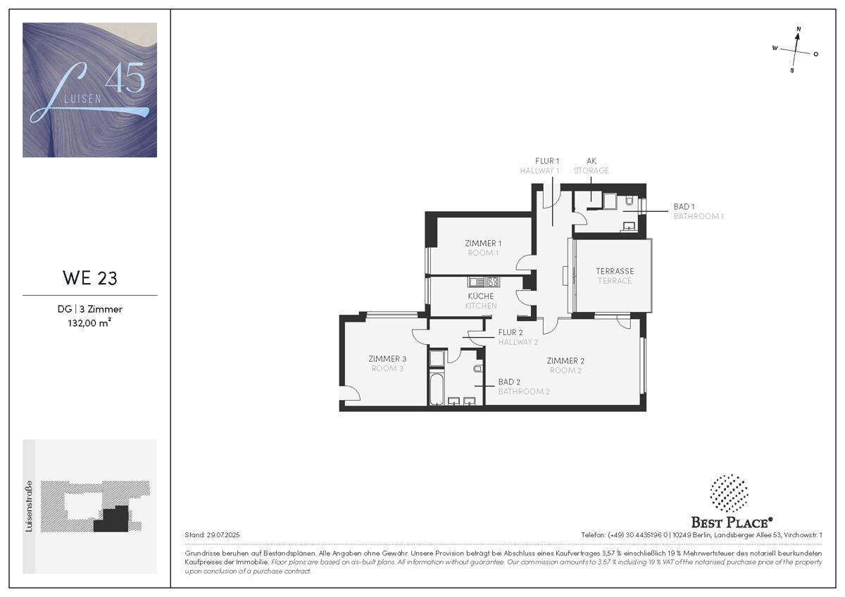
    Dachgeschosswohnung
  • Preis
    1.109.000 € (zzgl. Provision)
  • Provision für Käufer
    3,57%
  • Etage
    5. OG (DG)
  • Zimmeranzahl
    3
  • Wohnfläche
    131,99 m2
  • Baujahr
    1838
  • ID
    288269
  • Anbieter Objekt-ID
    LUISEN-WE23

Merkmale

  • Befeuerung: Fernwärme
  • Fernwärmeheizung
  • Personenaufzug

Lage


•90 m zu Fuß zur nächsten Bushaltestelle
•150 m zu Fuß zu Drogeriemarkt und Supermarkt
•250 m zu Fuß zum Deutschen Theater
•500 m mit dem Fahrrad zum Futurium
•650 m mit dem Fahrrad zum Friedrichstadt-Palast
•850 m mit dem Fahrrad zum Reichstag
•8 Minuten mit dem Auto zum Potsdamer Platz
•13 Minuten mit dem Auto zum KaDeWe
•35 Minuten mit dem Auto zum Hauptstadtflughafen

Ausstattung

•Großzügige Dachterrasse mit Westausrichtung
•Zwei elegant ausgestattete Bäder – das Hauptbad mit Badewanne und separater, bodengleicher Dusche, das zweite mit komfortabler bodengleicher Dusche
•Ruhig gelegenes Schlafzimmer mit Fenster zum Innenhof
•Großzügiger Wohnbereich mit direktem Terrassenzugang
•Echtholzparkett
•Großformatige Fliesen und moderne Sanitärobjekte
•Personenaufzug mit barrierefreiem Zugang zu allen Etagen

Beschreibung

Im Herzen von Berlin-Mitte erwartet Sie diese außergewöhnliche Dachgeschosswohnung – ein Refugium hoch über den Dächern der Stadt. Auf rund 132 m² verbindet diese Immobilie zeitlose Eleganz mit modernem Wohnkomfort und einem Lebensgefühl, das urbanes Wohnen auf höchstem Niveau verspricht.

Schon beim Eintreten öffnen raumhohe Fenster weite Blickachsen und lassen die Stadt in die Räume hineinströmen. Das Zentrum der Wohnung bildet der großzügige Wohnbereich mit Zugang zur eindrucksvollen XXL-Terrasse – ein besonderer Ort für den ersten Kaffee bei traumhaften Sonnenaufgängen, entspannte Stunden im Freien oder stilvolle Abende mit Freunden über den Lichtern Berlins.

Zwei hochwertig ausgestattete Badezimmer setzen luxuriöse Akzente: eines mit Badewanne und bodengleicher Rainshower-Dusche, das andere mit einer bodengleichen Rainshower-Dusche. Edle Materialien, klare Linien und eine stimmige Gestaltung schaffen hier Orte des Rückzugs und der Erholung.

Die beiden Schlafzimmer liegen ruhig zum Innenhof und bieten so einen erholsamen Ausgleich zum urbanen Leben. Parkettböden, großformatige Fliesen, bodentiefe Fenster und präzise Details unterstreichen den hohen Anspruch an Qualität und Design.

Hier wohnen Sie mitten im kulturellen und kulinarischen Zentrum Berlins – mit kurzen Wegen zur Spree, zum Regierungsviertel und zu den schönsten Plätzen der Hauptstadt. Eine Wohnung, die nicht nur überzeugt, sondern inspiriert.

Energienachweis

Energieausweistyp: Verbrauchsausweis
Gültigkeit: 2031-04-27
Energieträger: GAS

Der Finanzierungsrechner für Ihren Wohnkredit

Mit unserem Finanzierungsrechner kannst du schnell und bequem eine Finanzierung für deine Immobilie berechnen.

Finanzierungsbeispiel

Eigenkapital: 221.800 €
Sollzinsbindung: 10 Jahre
Tilgungsrate: 1 %
Monatsrate

3.712 €

Dieses Wohnbeispiel ist Teil des Bauvorhabens
Luisen 45

Anbieter kontaktieren
Pflichtfelder *

Wir behandeln deine Daten vertraulich. Mit dem Absenden erklärst du dich mit der Verarbeitung deiner Anfrage gemäß unserer Datenschutzerklärung und AGB für Verbraucher:innen einverstanden.

Anbieter