Dieses Wohnbeispiel ist Teil des Bauvorhabens Ahrensfelder Obstwiesen

Einfamilienhaus mit Terrasse im Grünen inkl. erschlossenem Grundstück

  • Baubeginn erfolgt
  • Effizienzhaus 55
  • Provisionsfrei
  • Adresse
    Barnimblick, 16356 Ahrensfelde
  • Wohntyp
    Einfamilienhaus
  • Preis
    639.900 €
  • Zimmeranzahl
    4
  • Badezimmer
    2
  • Schlafzimmer
    3
  • Wohnfläche
    119,96 m2
  • Grundstücksfläche
    490 m2
  • Nutzfläche
    8,75 m2
  • Baujahr
    2027
  • Bezugsfertig ab
    September 2027
  • Anzahl Außenstellplätze
    2
  • ID
    295091
  • Anbieter Objekt-ID
    132862738#Z1AxyZ

Merkmale

  • Badewanne
  • Befeuerung: Luftwärmepumpe
  • Dusche
  • Fliesenboden
  • Freiplatzstellplatz
  • Fußbodenheizung
  • Neubau

Lage

Auf der Karte anzeigen

Wiesen und Weiher im Umfeld, die Hauptstadtgrenze ganz nah: Das Neubaugebiet Ahrensfelder Obstwiesen liegt für Familien und Berufspendler optimal. Zum Spielplatz, zur Bäckerei und zum Supermarkt laufen Sie wenige Minuten. Am S-Bahnhof Ahrensfelde sind Sie mit dem Fahrrad in 6 Minuten.

Ausstattung

- Bodentiefe Fenster
- Terrasse
- zwei Außenstellplätze
- Laminat und Fußbodenheizung
- Luft-Wärmepumpe
- Massivbau mit Energieeffizienzklasse A

Beschreibung

Genießen Sie Ihre neue Terrasse.
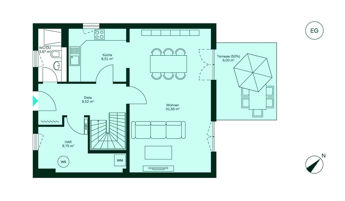
Willkommen in Ihrem neuen Zuhause. Im Erdgeschoss erwartet Sie ein einladender Wohnbereich, der sich zur Terrasse öffnet – ideal für gemütliche Abende. Die Küche bietet Raum für kulinarische Kreationen, während das Gäste-WC und der Hauswirtschaftsraum für zusätzlichen Komfort sorgen. Im Obergeschoss finden Sie drei Schlafzimmer und ein geräumiges Badezimmer. Hier ist Platz für die ganze Familie, um sich wohlzufühlen und zu entspannen.

Energienachweis

Energieträger: Wärmepumpe

Sonstiges

Festpreisgarantie für Ihre Planungssicherheit
Mit unserer Festpreisgarantie bleibt Ihr vertraglich vereinbarter Kaufpreis unverändert. Sie wählen Ihre Wunschimmobilie zu dem entsprechenden Kaufpreis, ohne versteckte Kosten. Selbst bei schwankenden Rohstoffpreisen behalten Sie von Anfang an finanzielle Klarheit und können mit einem sicheren Gefühl planen.

Der Finanzierungsrechner für Ihren Wohnkredit

Mit unserem Finanzierungsrechner kannst du schnell und bequem eine Finanzierung für deine Immobilie berechnen.

Finanzierungsbeispiel

Eigenkapital: 127.980 €
Sollzinsbindung: 10 Jahre
Tilgungsrate: 1 %
Monatsrate

2.154 €

Dieses Wohnbeispiel ist Teil des Bauvorhabens
Ahrensfelder Obstwiesen

Exposé/Preisliste anfordern
Pflichtfelder *

Wir behandeln deine Daten vertraulich. Mit dem Absenden erklärst du dich mit der Verarbeitung deiner Anfrage gemäß unserer Datenschutzerklärung und AGB für Verbraucher:innen einverstanden.