Dieses Wohnbeispiel ist Teil des Bauvorhabens Am Wiesenweg

6-Zi.-Doppelhaushälfte inklusive Grundstück

  • Effizienzhaus 55
  • Adresse
    Wiesenweg 27, 14621 Schönwalde-Glien
  • Wohntyp
    Doppelhaushälfte
  • Preis
    549.900 €
  • Zimmeranzahl
    6
  • Badezimmer
    2
  • Schlafzimmer
    5
  • Wohnfläche
    159,39 m2
  • Grundstücksfläche
    458 m2
  • ID
    293815
  • Anbieter Objekt-ID
    132862703#Z1AxyZ

Merkmale

  • Badewanne
  • Dusche
  • Fußbodenheizung
  • Neubau

Lage

Auf der Karte anzeigen

Am Wiesenweg hat die Natur das Sagen: Weite Landschaft, die das Gemüt beruhigt. Dabei liegen die neuen Häuser nur 4 km hinter der Berliner Stadtgrenze. Der Bahnhof Falkensee ist mit dem Auto in rund 12 Minuten erreichbar. Hier fahren mehrmals stündlich Züge nach Berlin.

Ausstattung

- Massivbau als Effizienzhaus 55
- inklusive erschlossenem Grundstück
- Terrasse mit Garten
- offen gestaltete Wohnküche
- Tageslichtbad mit Dusche und Badewanne
- zusätzliches Duschbad mit Fenster im EG
- Handtuchheizkörper
- bodentiefe Fenster
- Fußbodenheizung
- Rollläden
- zwei Außenstellplätze
- Luft-Wärmepumpe
- Glasfaseranschluss
- ruhige Lage

Beschreibung

In dieser geräumigen Doppelhaushälfte können Sie sich auf sechs Zimmern nach Belieben einrichten und die Ruhe der Umgebung genießen.

Willkommen in Ihrem neuen Zuhause. Der Eingangsbereich bietet Platz für Ihre Garderobe. Die offene Küche und der angrenzende Wohnbereich laden zu gemeinsamen Stunden ein. Auf der Terrasse genießen Sie Zeit im Freien. Im Erdgeschoss befinden sich außerdem ein Schlafzimmer, ein Badezimmer sowie ein Hauswirtschaftsraum und ein Abstellraum für zusätzlichen Stauraum.

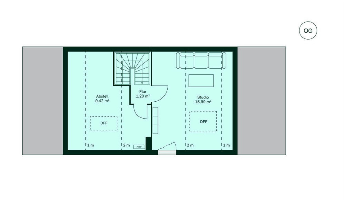
Im Obergeschoss stehen Ihnen drei Zimmer zur Verfügung, die sich flexibel als Kinder-, Gäste- oder Hobbyräume nutzen lassen. Ein zweites Bad mit Wanne und Dusche ergänzt diese Ebene. Zusätzlich bietet das ausgebaute Dachgeschoss ein Studio, das Sie vielseitig nutzen können, zum Beispiel als Arbeitsbereich oder Rückzugsort.

Sonstiges

Festpreisgarantie für Ihre Planungssicherheit

Mit unserer Festpreisgarantie bleibt Ihr vertraglich vereinbarter Kaufpreis unverändert. Sie wählen Ihre Wunschimmobilie zu dem entsprechenden Kaufpreis, ohne versteckte Kosten. Selbst bei schwankenden Rohstoffpreisen behalten Sie von Anfang an finanzielle Klarheit und können mit einem sicheren Gefühl planen.

Der Finanzierungsrechner für Ihren Wohnkredit

Mit unserem Finanzierungsrechner kannst du schnell und bequem eine Finanzierung für deine Immobilie berechnen.

Finanzierungsbeispiel

Eigenkapital: 109.980 €
Sollzinsbindung: 10 Jahre
Tilgungsrate: 1 %
Monatsrate

1.827 €

Dieses Wohnbeispiel ist Teil des Bauvorhabens
Am Wiesenweg

Exposé/Preisliste anfordern
Pflichtfelder *

Wir behandeln deine Daten vertraulich. Mit dem Absenden erklärst du dich mit der Verarbeitung deiner Anfrage gemäß unserer Datenschutzerklärung und AGB für Verbraucher:innen einverstanden.