Dieses Wohnbeispiel ist Teil des Bauvorhabens An den Weichser Breiten Regensburg

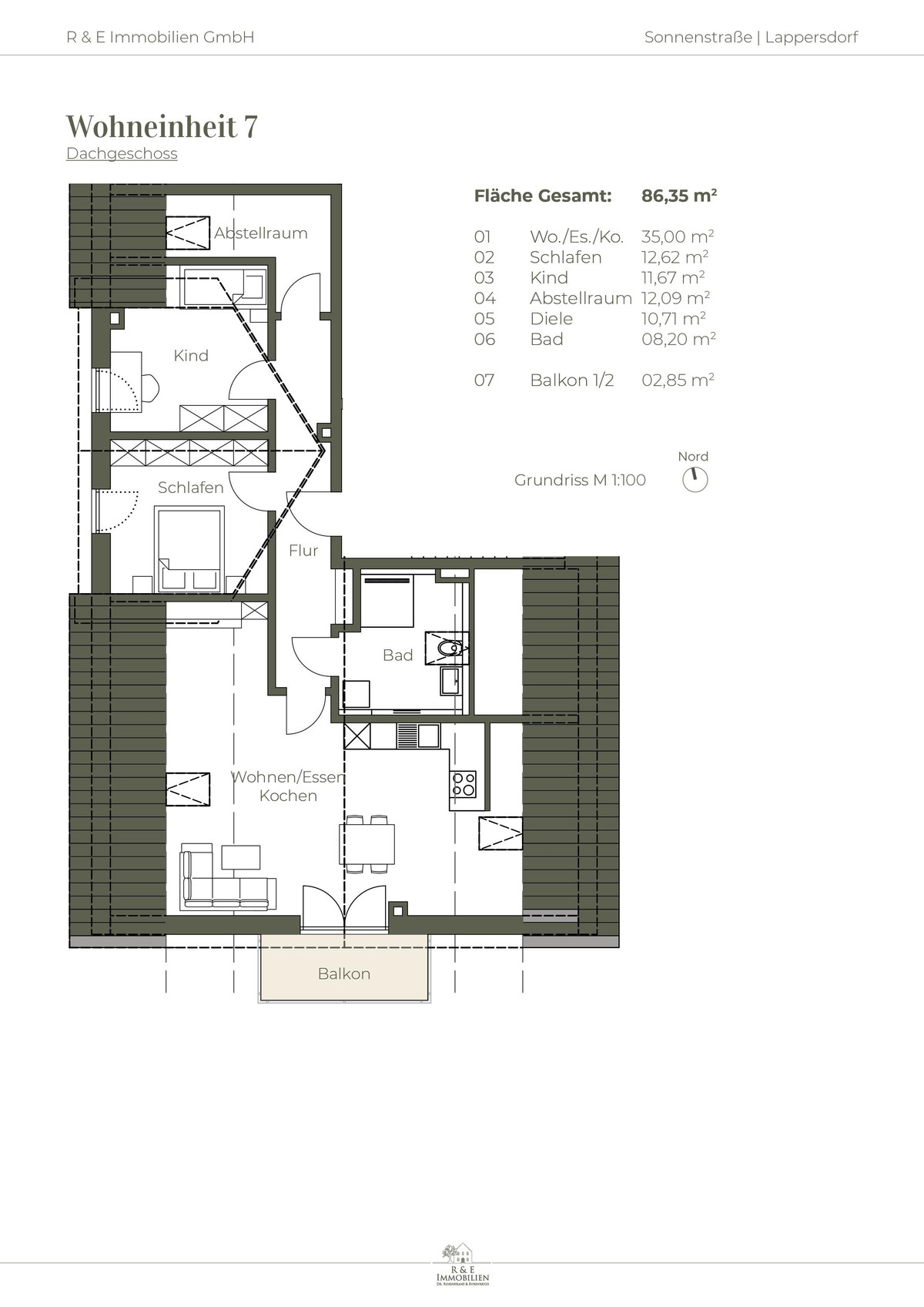
Wohnung 7

  • Effizienzhaus 40 KFN
  • Effizienzhaus 40 QNG
  • Adresse
    An den Weichser Breiten, 93059 Regensburg / Reinhausen
  • Wohntyp
    Dachgeschosswohnung
  • Preis
    557.500 €
  • Zimmeranzahl
    3
  • Wohnfläche
    87,13 m2
  • Anzahl Außenstellplätze
    1
  • ID
    293496

Lage

Auf der Karte anzeigen

Der Finanzierungsrechner für Ihren Wohnkredit

Mit unserem Finanzierungsrechner kannst du schnell und bequem eine Finanzierung für deine Immobilie berechnen.

Finanzierungsbeispiel

Eigenkapital: 111.500 €
Sollzinsbindung: 10 Jahre
Tilgungsrate: 1 %
Monatsrate

1.790 €

Dieses Wohnbeispiel ist Teil des Bauvorhabens
An den Weichser Breiten Regensburg

Exposé/Preisliste anfordern
Pflichtfelder *

Wir behandeln deine Daten vertraulich. Mit dem Absenden erklärst du dich mit der Verarbeitung deiner Anfrage gemäß unserer Datenschutzerklärung und AGB für Verbraucher:innen einverstanden.

Anbieter

Dr. Rosenkranz & Ehrenreich Projektentwicklung

Am Naturpark 2, 93158 Teublitz

Dr. Rosenkranz & Ehrenreich Projektentwicklung