RESERVIERT

Dieses Wohnbeispiel ist Teil des Bauvorhabens Bürgerstraße 53

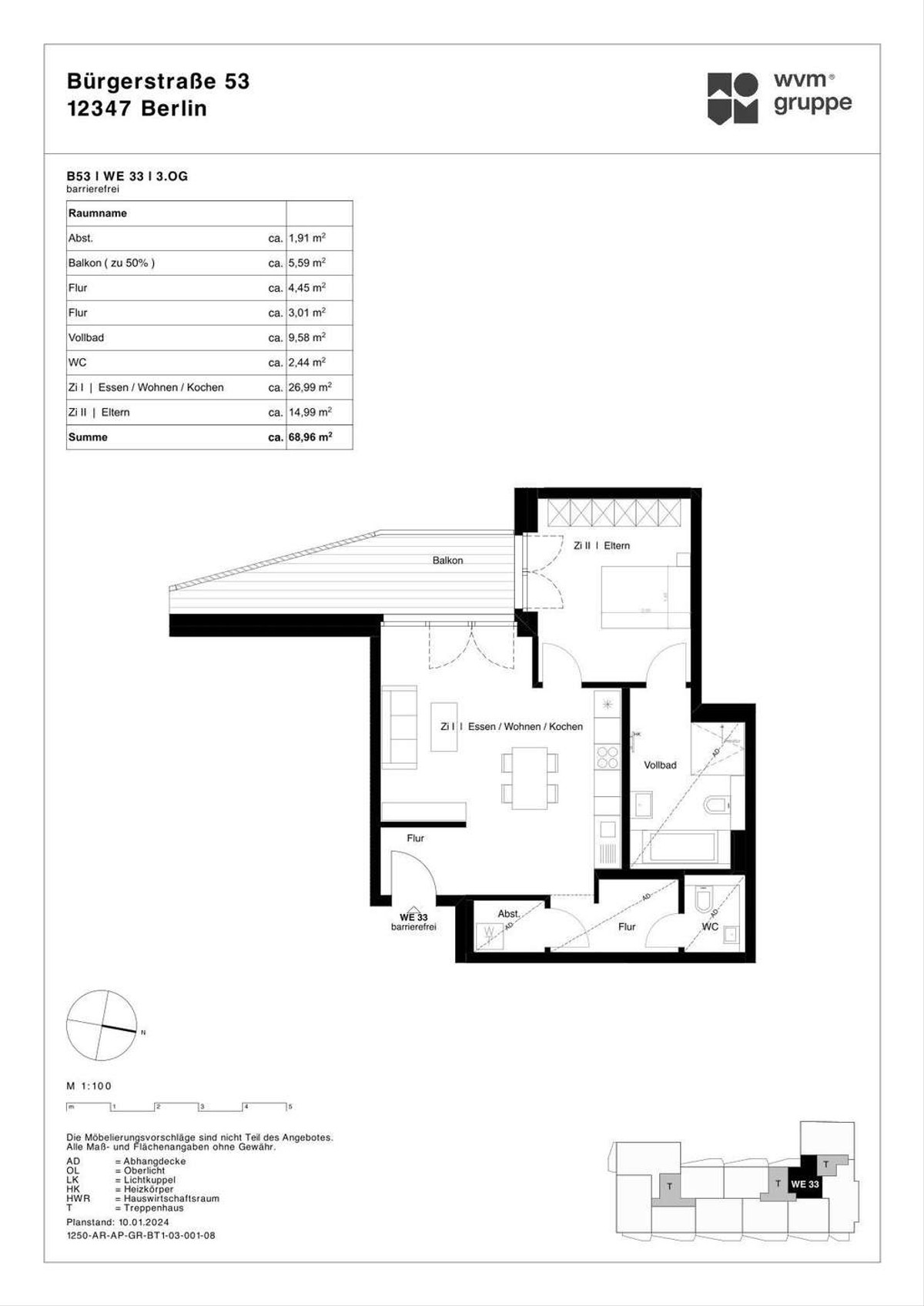
Bezugsfrei 2-Zimmer Neubauwohnung mit Balkon in Berlin-Neukölln | barrierefrei

  • Bezugsfertig
  • Provisionsfrei
  • Adresse
    Bürgerstraße 53, 12347 Berlin / Neukölln
  • Wohntyp
    Etagenwohnung
  • Preis
    Auf Anfrage
  • Etage
    3. OG
  • Zimmeranzahl
    2
  • Badezimmer
    1
  • Schlafzimmer
    1
  • Wohnfläche
    68,96 m2
  • Bezugsfertig ab
    sofort
  • Tiefgaragen-Stellplatz
    Auf Anfrage
  • ID
    278603
  • Anbieter Objekt-ID
    BO 53 - WE 33

Merkmale

  • Abstellraum
  • Balkon
  • Befeuerung: Fernwärme
  • Fußbodenheizung
  • Gehobene Ausstattung
  • Keller
  • Parkettboden
  • Personenaufzug
  • Tiefgaragenstellplatz

Lage

Auf der Karte anzeigen

Der pulsierende Bezirk Neukölln hat sich vom ehemaligen Arbeiterquartier zu einem gefragten Szenestadtteil für Künstler, Kreative und junge Familien entwickelt. Zwischen Teltowkanal und Maybachufer prägen Menschen aus über 160 Nationen das multikulturelle, weltoffene Flair. Zahlreiche Grünflächen und Parks sorgen für hohen Freizeit- und Erholungswert. Einkaufsmöglichkeiten, Cafés und alles für den täglichen Bedarf finden sich direkt im Kiez. Dank guter Anbindung über Ringbahn und Stadtautobahn ist man schnell in ganz Berlin unterwegs. Der belebte Britzer Damm, Radwege sowie die S- und U-Bahn sind nicht weit. Besonders attraktiv für Familien: Eine Kita befindet sich im Haus, Schulen liegen in fußläufiger Nähe.

Ausstattung

Die Wohnung ist ideal für Singles oder Paare geeignet und bietet mit 2 Zimmern und einer Wohnfläche von 68,96 m² ausreichend Platz zum Leben und Wohlfühlen. Sie befindet sich im 3. Obergeschoss und verfügt über ein Schlafzimmer sowie ein Badezimmer mit Dusche und Badewanne. Sowohl vom Wohn-Ess-Bereich als auch vom Schlafzimmer aus kannst du ganz bequem deinen eigenen Balkon erreichen. Stil und Komfort: Echtholzparkett mit Fußbodenheizung sorgt für wohlige Wärme und das Bad ist mit hochwertigen Marken und großformatigen Fliesen zeitlos qualitativ ausgestattet. Ein separater Abstellraum in der Wohnung mit Anschluss für Waschmaschine und Trockner sowie ein separater Kellerraum sorgen für ausreichend Stauraum. Der barrierefreie Zugang mit dem Aufzug vom Keller bis auf die Wohnetage erleichtert den Alltag. Ein Sicherheitsplus bietet die Videogegensprechanlage.

Zeitlos und qualitativ: die hochwertige Ausstattung mit Echtholzparkett von Bauwerk, Badausstattung von Villeroy & Boch, Kermos und weiteren namhaften Herstellern sorgt für ein behagliches Wohngefühl und Komfort im Alltag. Die Stellplätze in der Tiefgarage sind für Elektromobilität vorgerüstet (e-mobility-ready). Der energieeffiziente Neubau (EH40) verfügt über eine PV-Anlage und Dachbegrünung zur CO2-Bindung.

Beschreibung

Neukölln zählt seit Jahren zu den dynamischsten Berliner Bezirken. Die Nähe zu Kreuzberg, Treptow und dem Tempelhofer Feld sowie das urbane Umfeld bieten eine hohe Lebensqualität und kurze Wege. Das Bo Carée liegt in einer ruhigen Seitenstraße und bietet bezugsfertige 2- bis 4-Zimmer-Eigentumswohnungen mit bis zu 120 m2. Der energieeffiziente Neubau punktet mit teils barrierefreien Grundrissen, großzügigen Balkonen und Dachterrassen sowie hochwertiger Ausstattung. Die bodentiefen Fenster lassen viel Licht in die Räume. Aufzug, Parkett und Fußbodenheizung sorgen für komfortables Wohnen.

Energienachweis

Energieausweistyp: Bedarfsausweis
Gültigkeit: 12.11.2035
Endenergiebedarf: 43.4
Energieträger: Fernwärme
Ausstelldatum: 2025-11-13
Energieklasse: A
43.4 kWh/(m²*a)
Energieeffizienzklasse A
  • A+
  • A
  • B
  • C
  • D
  • E
  • F
  • G
  • H
  • 0
  • 25
  • 50
  • 75
  • 100
  • 125
  • 150
  • 175
  • 200
  • 225
  • > 250

Sonstiges

ENERGIEPFLICHTANGABEN GEM. § 87 GEG:
Art des Energieausweises: Bedarfsausweis
Wert des Energiebedarfs: 43,4 kWh/(m²*a)
Energieträger: Fernwärme
Baujahr: 2025
Energieeffizienzklasse: A

Bei den Visualisierungen handelt es sich um unverbindliche Darstellungen.
Keine Maklerprovision für den Käufer!

wvm gruppe - Wir bauen auf Beständigkeit. Seit über 30 Jahren in Köln und seit 10 Jahren auch in Berlin!

Der Finanzierungsrechner für Ihren Wohnkredit

Mit unserem Finanzierungsrechner kannst du schnell und bequem eine Finanzierung für deine Immobilie berechnen.

Finanzierungsbeispiel

Eigenkapital: 92.400 €
Sollzinsbindung: 10 Jahre
Tilgungsrate: 1 %
Monatsrate

1.526 €

Dieses Wohnbeispiel ist Teil des Bauvorhabens
Bürgerstraße 53

Anbieter

WvM Vertriebsgesellschaft mbH

Hardefuststraße 7, 50677 Köln

WvM Vertriebsgesellschaft mbH