Dieses Wohnbeispiel ist Teil des Bauvorhabens EDEN TOWER

Eleganz trifft Effizienz: City-Apartment mit weitläufigem Balkon im Europaviertel

  • Provisionsfrei
  • Adresse
    Europa-Allee 11, 60327 Frankfurt am Main / Europaviertel
  • Wohntyp
    Etagenwohnung
  • Preis
    630.000 €
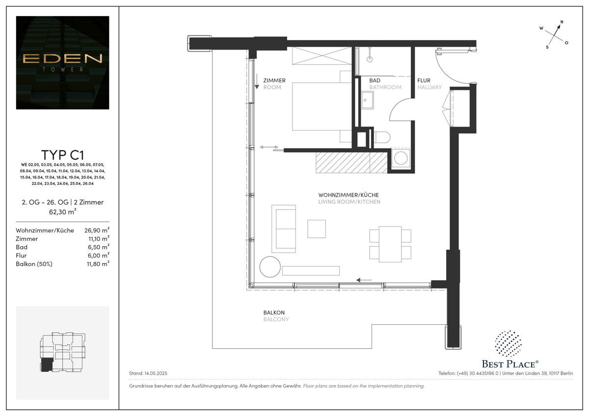
  • Zimmeranzahl
    2
  • Wohnfläche
    62,8 m2
  • Baujahr
    2024
  • ID
    295666
  • Anbieter Objekt-ID
    EDEN-WE2504

Merkmale

  • Befeuerung: Fernwärme
  • Fußbodenheizung
  • Keller
  • Personenaufzug
  • Tiefgaragenstellplatz

Lage

Auf der Karte anzeigen

Wer hier wohnt, hat einige der spannendsten Stadtviertel unmittelbar vor der Haustür. Das feine, baumbestandene Westend. Die schicke Innenstadt mit Opernplatz, belebten Cafés und noblen Shops. Das junge Europaviertel mit Skyline Plaza und bester Infrastruktur. Das Bankenviertel mit seinen schillernden Türmen und das kreative Bahnhofsviertel mit angesagten Szenebars und Clubs. Durch die U-Bahn-Station direkt vor dem Eingang ist EDEN mit allen wichtigen regionalen und überregionalen Verkehrsknotenpunkten vernetzt. Aber auch zu Fuß oder mit dem Fahrrad sind die Highlights der Stadt schnell und bequem zu erreichen. Das Gallus-Viertel ist eine der sich am schnellsten entwickelnden Gegenden in Frankfurt, mit einer spannenden Mischung aus historischen Gebäuden, modernen Neubauten und einer multikulturellen Bevölkerung. Die industrielle Vergangenheit spiegelt sich heute noch in einigen alten Backsteinbauten und Fabrikhallen wider, die teilweise zu Wohn- oder Gewerberaum umfunktioniert wurden. Seit den frühen 2000er Jahren hat das Gallusviertel einen großen Wandel erlebt, vor allem durch die Entwicklung des angrenzenden Europaviertels. Dieser neu gestaltete Stadtteil mit modernen Hochhäusern, Bürokomplexen und Einkaufsmöglichkeiten wie der Skyline Plaza zieht viele neue Bewohner und Unternehmen an. Zahlreiche internationale Restaurants, Cafés, und kleine Geschäfte prägen das Straßenbild und ziehen Menschen aus ganz Frankfurt an.

Ausstattung

•Hochhaus mit begrünter Fassade
•Lobby
•24/7 Concierge
•Hauseigenes Gym
•Gemeinschafts-Dachterrasse
•Panoramafenster
•Echtholz-Parkett
•Fußbodenheizung
•Exklusive Ausstattungslinien
•Aufzug

Beschreibung

Mit 98 Metern Höhe, 27 Obergeschossen, atemberaubenden Ausblicken und der lebendig begrünten Fassade erwächst mit EDEN die neue, prägende Landmark in der Frankfurter Skyline. Es ist ein Ort, an dem sich das Leben jeden Tag ganz natürlich entfalten kann. 263 großzügige Domizile bieten grandiose Aussichten auf die Skyline. Raumhohe Panoramafenster, weitläufige Loggien, Terrassen und Balkone lassen innen und außen harmonisch ineinander übergehen. Und vertikale grüne Gärten verbinden sich mit der filigranen Glasfassade. Somit steht EDEN für den Mut, neue Wege zu gehen, und für die Wertschätzung der zeitlosen Schönheit der Natur. Natur heißt permanente Veränderung. Dabei strebt sie dem Licht entgegen. Der modern ausgestattete Fitnessraum macht es EDEN Bewohnern leicht, regelmäßig gezielt zu trainieren, und das in einem geschützten, angenehm privaten Rahmen. Hier kann man den Personal Trainer oder Yogalehrer empfangen oder ungestört seinem eigenen Rhythmus folgen. Auf der EDEN Rooftop-Terrasse kann man in luftiger Höhe wunderbar relaxen und neue Kraft tanken. Dieser urbane und erholsame Rückzugsort wurde exklusiv für die Bewohner und ihre Besucher geschaffen. Und der 24/7-Concierge-Service in der Lobby sorgt wie in einem guten Hotel für Komfort, Sicherheit und die vertrauensvolle Erledigung von großen und kleinen Wünschen.

Energienachweis

Energieausweistyp: Bedarfsausweis
Gültigkeit: 2033-04-25
Endenergiebedarf: 77.27
Energieträger: FERN
Energieklasse: C
77.27 kWh/(m²*a)
Energieeffizienzklasse C
  • A+
  • A
  • B
  • C
  • D
  • E
  • F
  • G
  • H
  • 0
  • 25
  • 50
  • 75
  • 100
  • 125
  • 150
  • 175
  • 200
  • 225
  • > 250

Der Finanzierungsrechner für Ihren Wohnkredit

Mit unserem Finanzierungsrechner kannst du schnell und bequem eine Finanzierung für deine Immobilie berechnen.

Finanzierungsbeispiel

Eigenkapital: 126.000 €
Sollzinsbindung: 10 Jahre
Tilgungsrate: 1 %
Monatsrate

2.109 €

Dieses Wohnbeispiel ist Teil des Bauvorhabens
EDEN TOWER

Exposé/Preisliste anfordern
Pflichtfelder *

Wir behandeln deine Daten vertraulich. Mit dem Absenden erklärst du dich mit der Verarbeitung deiner Anfrage gemäß unserer Datenschutzerklärung und AGB für Verbraucher:innen einverstanden.

Anbieter

Best Place Frankfurt

Goethestraße 2, 60313 Frankfurt am Main

Best Place Frankfurt