Dieses Wohnbeispiel ist Teil des Bauvorhabens Eigener Feldblick

Doppelhaushälfte mit Südterrasse, Keller und Garage

  • Effizienzhaus 55
  • Energieeffizienzklasse A+
  • Adresse
    Tourcoingstraße 5, 46240 Bottrop
  • Wohntyp
    Doppelhaushälfte
  • Preis
    524.900 €
  • Zimmeranzahl
    4
  • Badezimmer
    1
  • Schlafzimmer
    3
  • Wohnfläche
    105,27 m2
  • Grundstücksfläche
    208 m2
  • Nutzfläche
    51,03 m2
  • Baujahr
    2027
  • Bezugsfertig ab
    September 2027
  • Anzahl Garagen
    1
  • ID
    290760
  • Anbieter Objekt-ID
    132862573#Z1AxyZ

Merkmale

  • Befeuerung: Luftwärmepumpe
  • Dusche
  • Fußbodenheizung
  • Garagenstellplatz
  • Gäste-WC
  • Keller
  • Neubau

Lage

Auf der Karte anzeigen

Mitten im Grünen und doch bestens angebunden: Der Eigener Feldblick liegt im Bottroper Stadtteil Eigen, ruhig eingebettet zwischen Feldern und Stadt. Die Autobahnauffahrt ist nur zwei Minuten entfernt – ideal für Pendelnde. In sechs Fahrradminuten erreichen Sie den Sportpark, in 15 Autominuten die Skihalle, Indoor Skydiving oder das CentrO Oberhausen. Die Kita? Direkt neben dem Quartier.

Ausstattung

- Massivbau als Effizienzhaus 55
- inklusive erschlossenem Grundstück
- Effizienzklasse A+
- Wärmepumpe
- Fußbodenheizung
- zwei Vollgeschosse plus Keller
- Garten mit Südterrasse
- Garage am Haus und Stellplatz
- zwei Kinderzimmer
- Handtuchheizkörper
- Rollläden
- Dachbegrünung

Beschreibung

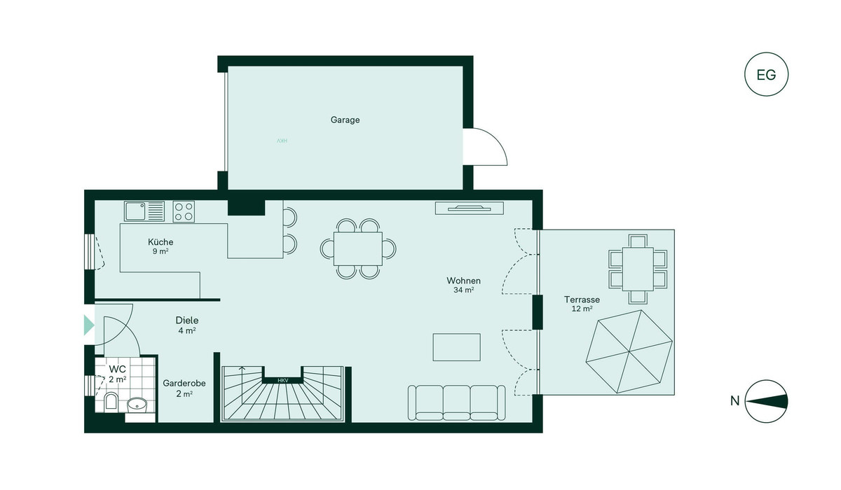
Viel Platz für Familienleben: mit vier Zimmern, großem Keller, sonniger Terrasse und durchdachter Ausstattung.

Diese moderne Doppelhaushälfte bietet auf zwei Etagen viel Raum für Alltag und Auszeiten. Im Erdgeschoss verbindet ein großzügiger Wohn- und Essbereich das Familienleben mit der sonnigen Südterrasse und dem Garten. Die offene Küche ist zentraler Treffpunkt, ein Gäste-WC und Platz für eine Garderobe ergänzen den Grundriss. Im Obergeschoss erwarten Sie drei helle Schlafzimmer und ein Tageslichtbad mit Dusche und praktischem Handtuchheizkörper. Die Fußbodenheizung im ganzen Haus sorgt für ein angenehmes Raumklima. Im geräumigen Keller gibt es Platz für Hobbys, Vorräte oder Sportausrüstung. Ihr Auto parken Sie bequem in der Garage oder auf dem Außenstellplatz. Dank Wärmepumpe und Effizienzhaus-Stufe 55 wohnen Sie nachhaltig und komfortabel.

Energienachweis

Energieträger: Wärmepumpe

Sonstiges

Neue KfW-Förderung für Effizienzhaus 55

Die Kreditanstalt für Wiederaufbau (KfW) fördert ab dem 16. Dezember 2025 erneut den Bau bestimmter energieeffizienter Wohnimmobilien. Dadurch haben Sie die Möglichkeit, bei der Finanzierung Ihrer Immobilie von einem zinsvergünstigten Kredit zu profitieren und so Kosten zu sparen. Den Antrag können Sie entweder bei Ihrer Bank oder gemeinsam mit unserem Finanzierungspartner Interhyp stellen.

Festpreisgarantie für Ihre Planungssicherheit

Mit unserer Festpreisgarantie bleibt Ihr vertraglich vereinbarter Kaufpreis unverändert. Sie wählen Ihre Wunschimmobilie zu dem entsprechenden Kaufpreis, ohne versteckte Kosten. Selbst bei schwankenden Rohstoffpreisen behalten Sie von Anfang an finanzielle Klarheit und können mit einem sicheren Gefühl planen.

Der Finanzierungsrechner für Ihren Wohnkredit

Mit unserem Finanzierungsrechner kannst du schnell und bequem eine Finanzierung für deine Immobilie berechnen.

Finanzierungsbeispiel

Eigenkapital: 104.980 €
Sollzinsbindung: 10 Jahre
Tilgungsrate: 1 %
Monatsrate

1.744 €

Dieses Wohnbeispiel ist Teil des Bauvorhabens
Eigener Feldblick

Exposé/Preisliste anfordern
Pflichtfelder *

Wir behandeln deine Daten vertraulich. Mit dem Absenden erklärst du dich mit der Verarbeitung deiner Anfrage gemäß unserer Datenschutzerklärung und AGB für Verbraucher:innen einverstanden.

Anbieter