Dieses Wohnbeispiel ist Teil des Bauvorhabens Inselliebe

Elegance meets style direkt am Wasser: Exklusives Neubau-Apartment mit Loggia - Wellness-Bad

  • Adresse
    Eiswerderstraße 12, 13585 Berlin
  • Wohntyp
    Etagenwohnung
  • Preis
    1.035.000 € (zzgl. Provision)
  • Provision für Käufer
    3,57%
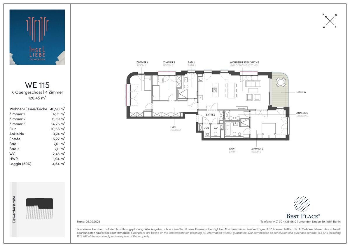
  • Etage
    7. OG
  • Zimmeranzahl
    4
  • Badezimmer
    2
  • Schlafzimmer
    3
  • Wohnfläche
    126,45 m2
  • Gesamtfläche
    126,45 m2
  • Baujahr
    2025
  • ID
    295293
  • Anbieter Objekt-ID
    INSEL-WE115

Merkmale

  • Befeuerung: Gas
  • Fußbodenheizung
  • Keller
  • Personenaufzug
  • Tiefgaragenstellplatz

Lage

Auf der Karte anzeigen

Inselliebe entsteht auf der sonnigen Südseite der Insel Eiswerder direkt neben dem Eiswerderpark. Wassersportler kommen hier auf Ihre Kosten: Ein SUP Center und mehrere Wassersportvereine sind auf der Insel aktiv. Supermärkte, Restaurants, Kitas und Schulen erreichen Sie in wenigen Minuten, ebenso wie den Krienicke Park mit dem Havel-Strand Haselhorst, einem Strandbad. Innerhalb von 20 Minuten sind Sie mit dem Auto in Charlottenburg – und tauchen ins bunte Großstadtleben ein.

Ausstattung

•Loggia
•Zwei Bäder
•Davon ein en suite Bad
•Ankleide
•Echtholzparkett
•Fußbodenheizung
•Rainshower Dusche
•HRW

Beschreibung

Living in style: Mit einzigartigen water views, viel natürlichem Licht und ausgewählten Materialien wird diese Neubau-Wohnung zum perfekten Rückzugsort, der gemütlich und repräsentativ gleichermaßen ist.

Herzstück der Wohnung ist der offene, lichtdurchflutete Wohn-/Ess-/Kochbereich mit Kücheninsel: Panoramafenster lassen das Sonnenlicht herein und bieten einen spektakulären Ausblick auf Berlin und die Havel. Lassen Sie sich beim ersten Kaffee am Morgen von den Sonnenstrahlen begrüßen und lassen Sie den Abend bei einem Glas Wein ausklingen. Schiebetüren verbinden den Wohnbereich mit der Loggia in Südost-Ausrichtung, Ihre persönliche Sunrise Lounge. Öffnen Sie den Schiebetüren, für einen wunderbaren Inside-Outside-Vibe.

Die Kücheninsel mit Kochfunktion garantiert Komfort und Eleganz beim Kochen und Genießen und die richtige Kulisse für schöne Stunden für Sie und Ihre Gäste. Vor der kitchen area findet eine gemütliche Lounge-Ecke mit Home-Entertainment-System Platz. Hochwertiges Echtholz-Parkett mit Fußbodenheizung sorgt das ganze Jahr über für ein gemütliches Gefühl in den Wohnräumen.

Das Schlafzimmer, ebenfalls mit Zugang zur Loggia, wird zu Ihrer Ruheoase. Dank en suite Wannenbad und Ankleide sorgen für gehobenen Komfort von morgens bis abends. Der ideale Ort, um Ihre Akkus aufzuladen, um am nächsten Tag neu durchzustarten. Über einen Flur sind das zweite Bad und die beiden anderen Zimmer erreichbar - ideal als Arbeits- und Gästezimmer nutzbar.

Die Bäder sind mit Rainshower Dusche und Handtuchheizkörper ausgestattet. Hochwertige Markenfabrikate, darunter von Geberit und Hansgrohe, verbinden Langlebigkeit mit Eleganz. Die Wand- und Bodenfliesen aus Feinsteinzeug in edlem Hellgrau, Format 60x120 cm, sorgen für einen edlen Look.

Ist das etwas für Sie? Melden Sie sich und vereinbaren Sie noch heute einen Besichtigungstermin für diese sonnige Neubau-Wohnung.

Energienachweis

Energieausweistyp: Bedarfsausweis
Gültigkeit: 1935-11-19
Endenergiebedarf: 81.8
Energieträger: FERN
Energieklasse: C
81.8 kWh/(m²*a)
Energieeffizienzklasse C
  • A+
  • A
  • B
  • C
  • D
  • E
  • F
  • G
  • H
  • 0
  • 25
  • 50
  • 75
  • 100
  • 125
  • 150
  • 175
  • 200
  • 225
  • > 250

Sonstiges

Unser Showroom in der Eiswerderstraße 10D, 13585 Berlin ist für Sie am Samstag und Sonntag von 11:00 - 14:00 Uhr geöffnet. Wir freuen uns auf Ihren Besuch!

Der Finanzierungsrechner für Ihren Wohnkredit

Mit unserem Finanzierungsrechner kannst du schnell und bequem eine Finanzierung für deine Immobilie berechnen.

Finanzierungsbeispiel

Eigenkapital: 207.000 €
Sollzinsbindung: 10 Jahre
Tilgungsrate: 1 %
Monatsrate

3.464 €

Dieses Wohnbeispiel ist Teil des Bauvorhabens
Inselliebe

Anbieter kontaktieren
Pflichtfelder *

Wir behandeln deine Daten vertraulich. Mit dem Absenden erklärst du dich mit der Verarbeitung deiner Anfrage gemäß unserer Datenschutzerklärung und AGB für Verbraucher:innen einverstanden.

Anbieter