Dieses Wohnbeispiel ist Teil des Bauvorhabens Liebermannstraße 70

KfW40-förderfähig: Atemberaubende 4-Zimmer-Wohnung mit großer Terrasse!

  • Effizienzhaus 40
  • Innenausbau
  • Provisionsfrei
  • Adresse
    Liebermannstraße 70, 13088 Berlin / Weißensee
  • Wohntyp
    Penthouse
  • Preis
    789.000 €
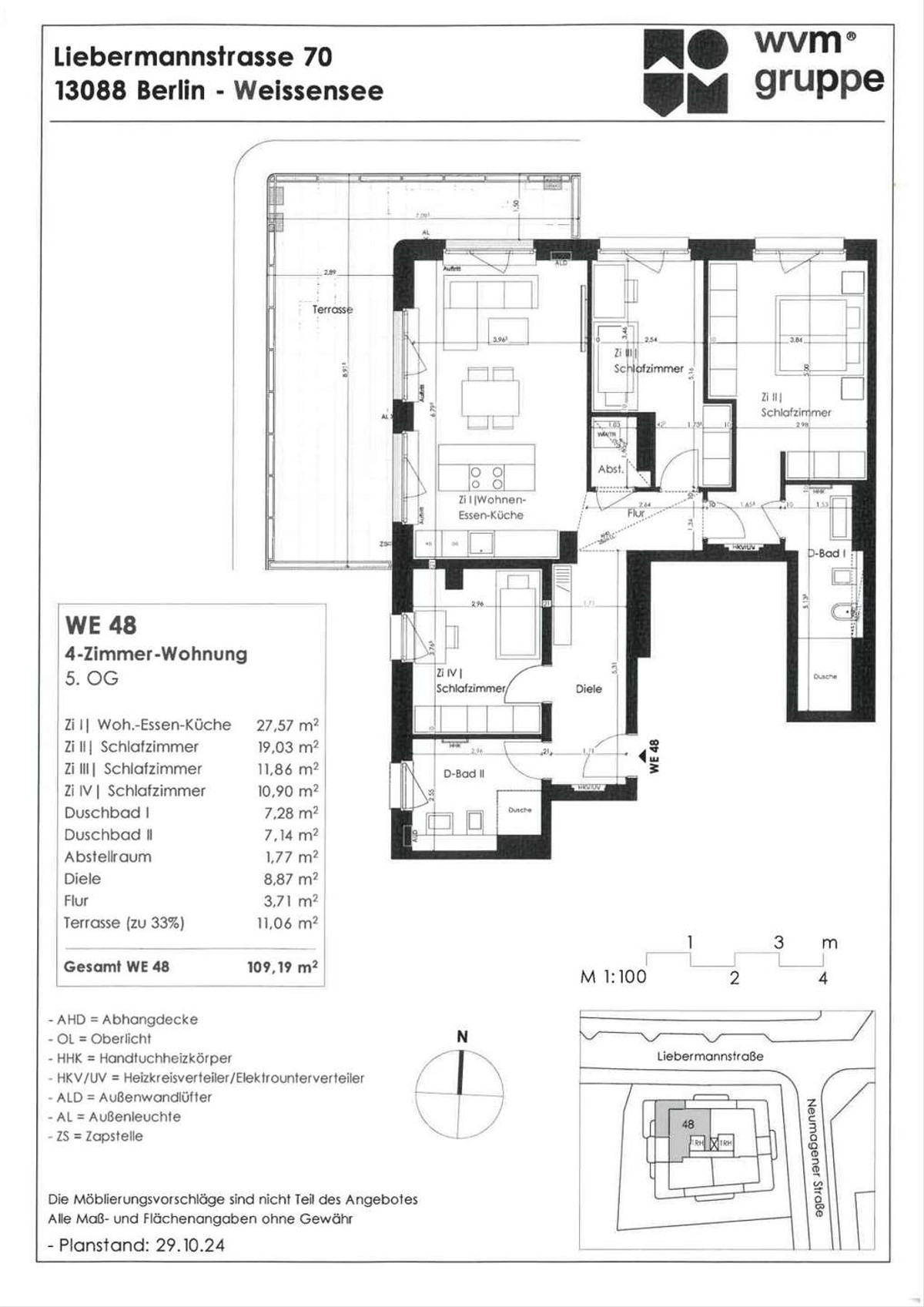
  • Etage
    5. OG (Penthouse)
  • Zimmeranzahl
    4
  • Badezimmer
    2
  • Schlafzimmer
    3
  • Wohnfläche
    109,19 m2
  • Baujahr
    2025
  • Bezugsfertig ab
    31.12.2026
  • Tiefgaragen-Stellplatz
    39.900 €
  • ID
    284590
  • Anbieter Objekt-ID
    LIE 70 - WE 48

Merkmale

  • Abstellraum
  • Balkon
  • Befeuerung: Elektro
  • Fußbodenheizung
  • Gehobene Ausstattung
  • Keller
  • Parkettboden
  • Personenaufzug
  • Tiefgaragenstellplatz

Lage

Auf der Karte anzeigen

Weißensee ist optimal an das öffentliche Verkehrsnetz angebunden. Mehrere Tram-Linien ermöglichen es, zentrale Punkte Berlins wie den Alexanderplatz und Prenzlauer Berg in wenigen Minuten zu erreichen. Diese gelungene Kombination aus Ruhe und städtischer Anbindung macht den Stadtteil besonders attraktiv für Pendler und all jene, die das urbane Leben genießen möchten, ohne auf Grünflächen verzichten zu müssen.

Die Gestaltung der Außenbereiche trägt zu einer einladenden Atmosphäre bei: Begrünte Spielflächen auf der sonnigen Südseite laden Kinder zum Spielen ein, während das begrünte Retentionsdach Regenwasser speichert und das Wohnklima verbessert. Die zahlreichen Bäume und Pflanzen rund um das Gebäude bieten nicht nur Schutz und Privatsphäre, sondern fördern auch das Wohlbefinden der Bewohner. Hier wohnen Sie im Einklang mit der Natur, ohne auf den Komfort des städtischen Lebens verzichten zu müssen.

Die lebendige Nachbarschaft bietet nicht nur eine hohe Lebensqualität, sondern auch ein inspirierendes Umfeld für alle, die das Beste aus beiden Welten suchen.

Ausstattung

Das Wohnhaus erreicht das Energieeffizienz-Niveau „Klimafreundlicher Neubau Wohngebäude“ (EH40) nach den Vorgaben des KfW-Förderprogramms Nr. 297/298.

Auf großzügigen 109,19 m² erwartet Sie eine moderne 4-Zimmer-Wohnung in der fünften Etage, die höchsten Wohnkomfort bietet. Drei durchdacht geschnittene Schlafzimmer und zwei elegante Badezimmer sorgen für ein harmonisches Raumkonzept, das Funktionalität mit stilvollem Design verbindet. Der bequeme Zugang zur Wohnung wird durch einen Aufzug gewährleistet, der alle Stockwerke inklusive des Untergeschosses anfährt. Ein praktischer Abstellraum in der Wohnung bietet Ihnen zusätzlichen Stauraum, um Ihr neues Zuhause organisiert zu halten.

Die Ausstattung ist durchweg hochwertig: Edler Eichenparkett sorgt für eine warme, natürliche Atmosphäre, während in den Bädern stilvolle Feinsteinzeugfliesen von renommierten Marken verlegt sind. Armaturen von Grohe und Keramik von Laufen stehen für erstklassige Qualität und exzellentes Design.

Für optimalen Komfort sind die Fenster in den oberen Geschossen mit Textilscreens ausgestattet. Moderne Annehmlichkeiten wie die dezentrale Lüftungsanlage mit Wärmerückgewinnung und eine Video-Gegensprechanlage mit Farbdisplay runden das luxuriöse Gesamtbild ab. Eine großzügige Terrasse lädt zum Entspannen und Genießen ein.

Beschreibung

Liebermannstraße 70 – Das perfekte Zuhause in Weißensee

Im Herzen des lebendigen und grünen Stadtteils Berlin-Weißensee entstehen an der Liebermannstraße 70 insgesamt 48 moderne Eigentumswohnungen. Weißensee vereint das Beste aus zwei Welten: urbanes Wohnen und unmittelbare Nähe zur Natur. Der nahegelegene Weiße See mit seinem idyllischen Park bietet Raum für Erholung und Freizeit – ideal für Familien, Singles und Paare, die eine Oase im städtischen Leben suchen.

Das Gebäude wurde vom renommierten Berliner Architekturbüro Stephan Höhne entworfen. Es fügt sich harmonisch in die bestehende Nachbarschaft ein und setzt gleichzeitig architektonische Akzente. Die Fassade orientiert sich an den benachbarten Klinkerbauten, verwendet jedoch hellere Farbtöne sowie warme Holztöne an den Fensterrahmen, um die Wohnnutzung zu betonen und eine einladende, harmonische Erscheinung zu schaffen. Die Architektur fördert sowohl Privatsphäre als auch Gemeinschaftsgefühl.

In der Liebermannstraße 70 werden nicht nur Wohnungen gebaut, sondern nachhaltige Lebensräume geschaffen. Die hauseigene PV-Anlage versorgt die Wärmepumpen mit Strom, um eine umweltfreundliche Energieversorgung zu gewährleisten. Dreifach verglaste Fenster, der Effizienzhaus-Standard 40 und umfassende Schallschutzmaßnahmen sorgen für ein ruhiges, energieeffizientes Zuhause. Dezentrale Lüftungsanlagen mit Wärmerückgewinnung sowie Fußbodenheizung tragen zusätzlich zu einem angenehmen Wohnklima bei.

Die hochwertige Ausstattung umfasst Echtholzparkett, großformatige Fliesen und Ausstattungselemente namhafter Hersteller. Mit 17 Tiefgaragenplätzen und einem PKW-Lift wird das Parkraummanagement effizient umgesetzt. Zudem stehen 108 Fahrradstellplätze zur Verfügung, einschließlich einer E-Bike-Ladestation.

Energienachweis

Energieausweistyp: Bedarfsausweis
Gültigkeit: 30.10.2034
Endenergiebedarf: 9.4
Energieträger: Strom
Ausstelldatum: 2024-11-01
Energieklasse: A+
9.4 kWh/(m²*a)
Energieeffizienzklasse A+
  • A+
  • A
  • B
  • C
  • D
  • E
  • F
  • G
  • H
  • 0
  • 25
  • 50
  • 75
  • 100
  • 125
  • 150
  • 175
  • 200
  • 225
  • > 250

Sonstiges

ENERGIEPFLICHTANGABEN GEM. § 87 GEG:
Art des Energieausweises: Bedarfsausweis
Wert des Energiebedarfs: 9,4 kWh/(m²*a)
Energieträger: Strom-Mix
Baujahr: 2025
Energieeffizienzklasse: A+

Keine Maklerprovision für den Käufer!
Bei den Visualisierungen handelt es sich um unverbindliche Darstellungen.

Der Finanzierungsrechner für Ihren Wohnkredit

Mit unserem Finanzierungsrechner kannst du schnell und bequem eine Finanzierung für deine Immobilie berechnen.

Finanzierungsbeispiel

Eigenkapital: 157.800 €
Sollzinsbindung: 10 Jahre
Tilgungsrate: 1 %
Monatsrate

2.641 €

Dieses Wohnbeispiel ist Teil des Bauvorhabens
Liebermannstraße 70

Anbieter kontaktieren
Pflichtfelder *

Wir behandeln deine Daten vertraulich. Mit dem Absenden erklärst du dich mit der Verarbeitung deiner Anfrage gemäß unserer Datenschutzerklärung und AGB für Verbraucher:innen einverstanden.

Anbieter

WvM Vertriebsgesellschaft mbH

Hardefuststraße 7, 50677 Köln

WvM Vertriebsgesellschaft mbH