Dieses Wohnbeispiel ist Teil des Bauvorhabens Winzerhöhe

Doppelhaushälfte mit Keller, inkl. Grundstück

  • Bezugsfertig
  • Effizienzhaus 55
  • Adresse
    Hermann-Rosenstock-Weg, 45529 Hattingen
  • Wohntyp
    Doppelhaushälfte
  • Preis
    661.850 €
  • Zimmeranzahl
    4
  • Schlafzimmer
    2
  • Wohnfläche
    145,83 m2
  • Grundstücksfläche
    273 m2
  • Nutzfläche
    35,19 m2
  • Nebenfläche
    17 m2
  • Baujahr
    2026
  • Bezugsfertig ab
    Juni 2026
  • Anzahl Außenstellplätze
    1
  • Anzahl Garagen
    1
  • ID
    292879
  • Anbieter Objekt-ID
    132861781#Z1AxyZ

Merkmale

  • Badewanne
  • Befeuerung: Fernwärme
  • Dusche
  • Fußbodenheizung
  • Garagenstellplatz
  • Gäste-WC
  • Keller
  • Neubau

Dokumente

Energieausweis_DHH_001-Winzerhoehe

Lage

Auf der Karte anzeigen

Wenige Minuten laufen Sie zum Ruhr-Ufer und dem Leinpfad, einem beliebten Spazier- und Radweg entlang der Ruhr. Die hübsche Hattinger Altstadt liegt nur 2 km entfernt. Zum nächsten Discounter sind es nur 450 Meter und zum Landschaftspark Henrichshütte radeln Sie etwa 10 Minuten.

Ausstattung

- Massivbau als Effizienzhaus 55
- inklusive erschlossenem Grundstück von 273 m²
- Keller
- gepflasterte Terrasse zum Garten
- Dachterrasse
- heller Wohnbereich mit offener Küche
- Gäste-WC mit Fenster
- Tageslichtbad
- bodengleiche Dusche
- Badewanne
- Handtuchheizkörper
- elektrische Rollläden
- Fußbodenheizung
- Isolierglas-Fenster
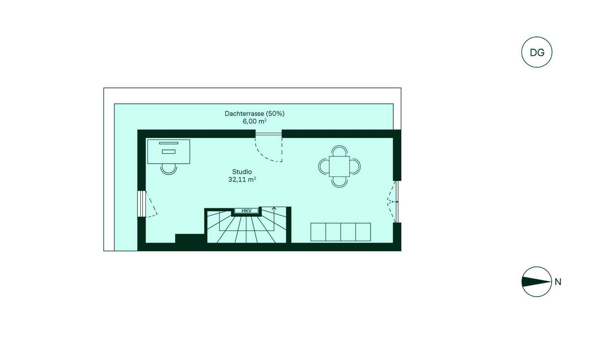
- ausgebautes Dachstudio: geschlossener Treppenaufgang durch zusätzliche Tür für optimale Raumabtrennung
- vorbereitete Wasseranschlüsse für spätere Einrichtung eines zusätzlichen Bads oder WCs im Dachstudio
- Ausstattung mit zusätzlichem Leerrohr für die Installation einer Photovoltaikanlage
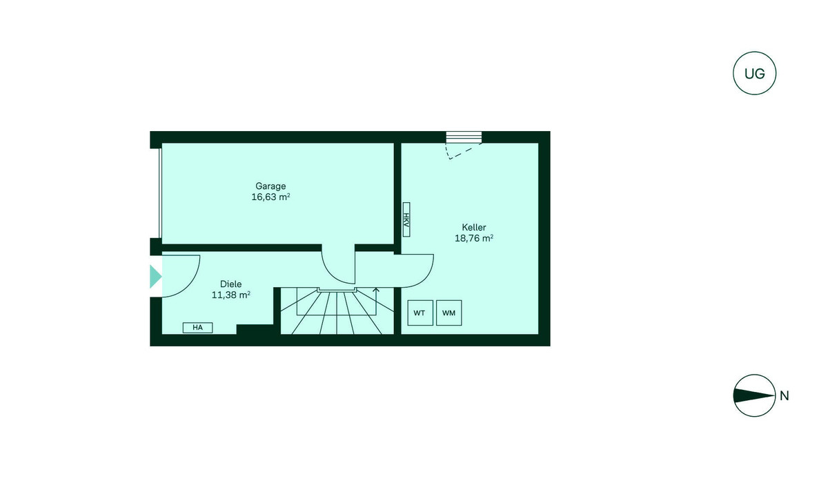
- großer Kellerraum mit Fenster und Waschmaschinenanschluss
- In-House Garage
- Außenstellplatz
- Spielstraße ohne Durchgangsverkehr
- Sitzmöglichkeiten im Quartier

Beschreibung

Dieses moderne Haus begeistert durch seine geräumigen Zimmer und einem großen Studio.

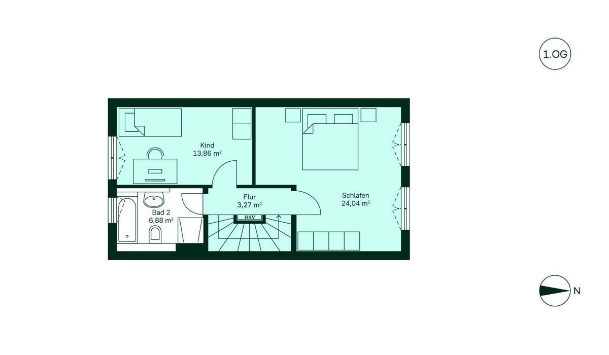
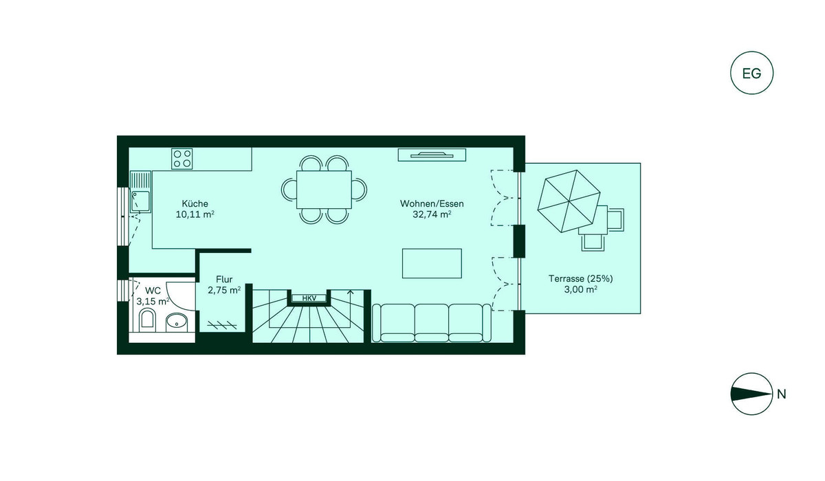
Diese Doppelhaushälfte bietet Ihnen auf vier Etagen maximales Wohnvergnügen. Im Souterrain erwartet Sie ein großzügiger Eingangsbereich mit direktem Zugang zur In-House Garage, in der Sie Ihr Auto sicher und wettergeschützt parken. Ein großer Kellerraum rundet dieses Geschoss ab. Ein großer und offener Wohnbereich mit angrenzender Küche im Erdgeschoss sorgt für ausreichend Platz, um sich zu entfalten. Die angrenzende Terrasse ist ideal für entspannte Abende im Freien. Eine Treppe höher genießen Sie zwei helle und freundliche Zimmer. Ihr Badezimmer wird zum Wohlfühlort – mit Tageslicht, einer Badewanne zum Entspannen und einer ebenerdigen Dusche für den frischen Start in den Tag. Homeoffice, Gästezimmer oder kreativer Raum – das ausgebaute Studio mit umlaufender Dachterrasse bietet Ihnen vielfältige Nutzungsmöglichkeiten.

Energienachweis

Gültigkeit: 01.08.2035
Energieträger: Wärmelieferung
Ausstelldatum: 2025-09-01

Sonstiges

Festpreisgarantie für Ihre Planungssicherheit

Mit unserer Festpreisgarantie bleibt Ihr vertraglich vereinbarter Kaufpreis unverändert. Sie wählen Ihre Wunschimmobilie zu dem entsprechenden Kaufpreis, ohne versteckte Kosten. Selbst bei schwankenden Rohstoffpreisen behalten Sie von Anfang an finanzielle Klarheit und können mit einem sicheren Gefühl planen.

Der Finanzierungsrechner für Ihren Wohnkredit

Mit unserem Finanzierungsrechner kannst du schnell und bequem eine Finanzierung für deine Immobilie berechnen.

Finanzierungsbeispiel

Eigenkapital: 132.370 €
Sollzinsbindung: 10 Jahre
Tilgungsrate: 1 %
Monatsrate

2.228 €

Dieses Wohnbeispiel ist Teil des Bauvorhabens
Winzerhöhe

Exposé/Preisliste anfordern
Pflichtfelder *

Wir behandeln deine Daten vertraulich. Mit dem Absenden erklärst du dich mit der Verarbeitung deiner Anfrage gemäß unserer Datenschutzerklärung und AGB für Verbraucher:innen einverstanden.

Anbieter