Best Place Immobilien

Mitte5

Neubau von 3 Eigentumswohnungen

Projektdetails

  • Rochstraße 5, 10178 Berlin / Mitte
  • Eigentumswohnung
  • 1.498.000 €
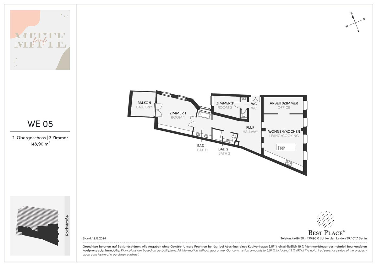
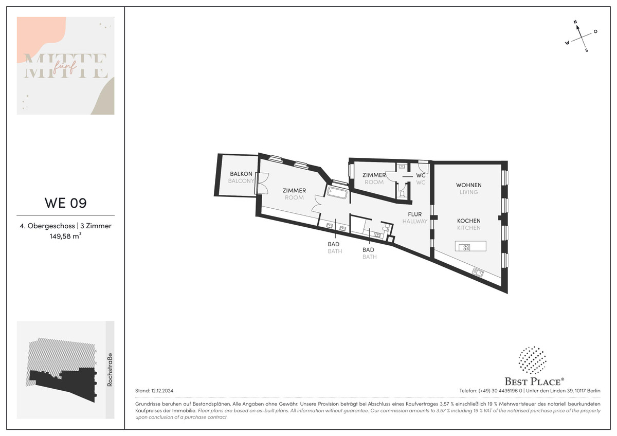
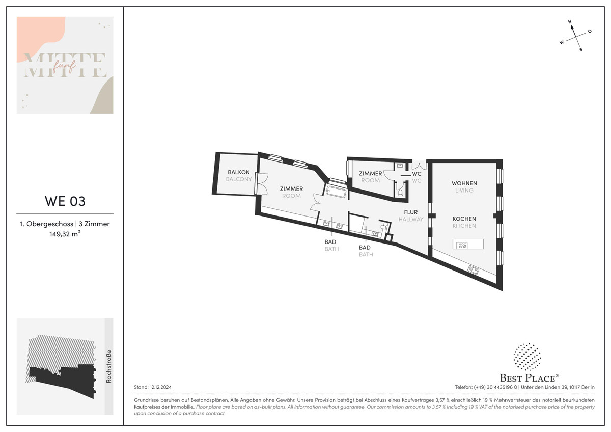
  • 4 Zimmer
  • 149,58 m2
  • Ab sofort
  • 3
  • Luxus
  • 28052

Merkmale

  • Badewanne
  • Balkon
  • Bodengleiche Dusche
  • Echtholz-Parkett
  • Einbauküche
  • Feinsteinzeugfliesen
  • Fenster 3-fach verglast
  • Fußbodenheizung
  • Gäste-WC
  • Handtuchheizkörper
  • Offene Küche
  • Sanitärausstattung von Markenherstellern
  • Tageslichtbad
  • Video-Gegensprechanlage

Lage

Auf der Karte anzeigen
Anbieter kontaktieren
Pflichtfelder *

Wir behandeln deine Daten vertraulich. Mit dem Absenden erklärst du dich mit der Verarbeitung deiner Anfrage gemäß unserer Datenschutzerklärung und AGB für Verbraucher:innen einverstanden.

Projektbeschreibung

Bild Neubauprojekt

Über das Objekt

Herzlich willkommen im Mitte5, wo sich Gründerzeit-Charme und cleaner Chic mit einer tollen City-Lage verbinden. Das elegante Gründerzeithaus mit Baujahr 1922 verfügt über fünf Etagen und ein neu aufgesetztes Dachgeschoss.

Im Vorderhaus und Seitenflügel liegen insgesamt acht Bestandswohnungen, von denen drei zum Verkauf angeboten wurden. Die weitläufigen 4-Zimmer-Wohnungen mit je ca. 149 m² sind mit hochwertigen Materialien liebevoll saniert und ab sofort bezugsfertig.

Sie verfügen je über einen Balkon, ein Duschbad und eine freistehende Badewanne. Im neu aufgesetzten Dachgeschoss entstehen zwei Neubauwohnungen, die ebenfalls hochwertig ausgestattet sind.

Aus den großformatigen Dachfenstern und den Dachterrassen bietet sich ein toller Blick über die Dächer Berlins bis zum Fernsehturm. Im Erdgeschoss liegen zwei Gewerbeeinheiten; in einer davon ist eine Boutique untergebracht.

Bild Neubauprojekt

Highlights

  • Traumhaftes Gründerzeithaus am Scheunenviertel
  • Bezugsfertige Gründerzeitwohnungen
  • Hochwertig saniert
  • Balkon/Terrasse
  • Parkett
  • Freistehende Badewanne
  • Hohe Decken
  • Aufzug
  • Keller
Bild Neubauprojekt

Lagebeschreibung

Der Ortsteil Mitte im gleichnamigen Bezirk ist im wahrsten Sinne des Wortes das Herz der Hauptstadt: Hier finden Sie die besten Restaurants, angesagte Bars, Kunst und Kultur auf höchstem Niveau und erstklassige Shopping-Möglichkeiten – das Beste, was Berlin zu bieten hat.

Mitte5 liegt direkt am angesagten Scheunenviertel mit stylischen Cafés, Flagshipstores internationaler Marken, renommierten Kunstgalerien und innovativ-eleganten Restaurants. Das ist Leben pur: Wer etwas auf sich hält, geht hier aus, essen oder shoppen.

Unter anderem in der Torstraße reihen sich innovative internationale Restaurants, exquisite Feinkostläden und Patisserien, stylische Cafés und angesagte Bars reihen sich hier aneinander. Nach Lust und Laune shoppen können Sie in der Alten Schönhauser Straße, Münzstraße und Weinmeisterstraße.

Am Rosa-Luxemburg Platz zeigt das historische Programmkino Babylon internationale Filme bei 20er-Jahre-Flair. Genauso schnell erreichen Sie die Kunstgalerien in der Gipsstraße und Auguststraße.

Rechtlicher Hinweis: Die Informationen zum Bauvorhaben sind ein redaktioneller Beitrag der neubau kompass AG. Er dient ausschließlich Informationszwecken und stellt kein Angebot im rechtlichen Sinne dar. Die angebotenen Inhalte werden von der neubau kompass AG nach § 2 TMG veröffentlicht und kontrolliert. Informationen zu einer etwaigen Provisionspflicht sind beim Anbieter zu erfragen. Alle Angaben, insbesondere zu Preisen, Wohnflächen, Ausstattung und Bezugsfertigkeit sind ohne Gewähr. Irrtum vorbehalten.

Anbieter