Dieses Wohnbeispiel ist Teil des Bauvorhabens Paulshöfe

Moderne Maisonettewohnung mit Terrasse und Garten

  • Effizienzhaus 40
  • Effizienzhaus 55 EE
  • Im Rohbau
  • Adresse
    Paulsmühlenstraße, Ecke Telleringstraße, 40597 Düsseldorf / Benrath
  • Wohntyp
    Apartment
  • Preis
    749.900 €
  • Zimmeranzahl
    6
  • Badezimmer
    2
  • Wohnfläche
    127,78 m2
  • Baujahr
    2027
  • Bezugsfertig ab
    Sommer 2027
  • ID
    291831
  • Anbieter Objekt-ID
    132862655#Z1AxyZ

Merkmale

  • Barrierefrei
  • Fußbodenheizung
  • Garten bzw. Gartennutzung
  • Keller
  • Neubau
  • Personenaufzug

Lage

Auf der Karte anzeigen

Das Neubauquartier Paulshöfe in Düsseldorf-Benrath bietet Ihnen nachhaltiges Wohnen mit hoher Lebensqualität. Ein Aufzug, Fernwärme und Fußbodenheizung sorgen für zusätzlichen Komfort. Die zahlreichen gemeinschaftlichen Einrichtungen wie der Garten und die Freizeitanlagen fördern ein harmonisches Miteinander.

Ausstattung

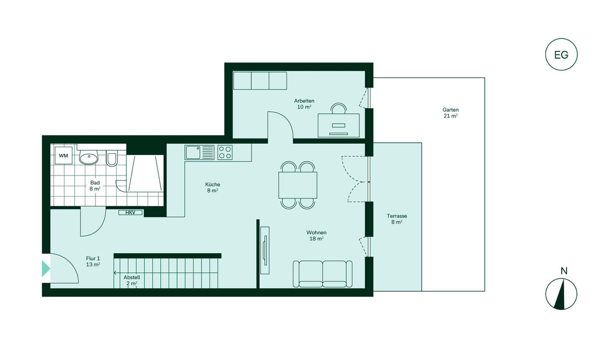
- Terrasse mit 21 m² Gartenfläche
- Maisonettewohnung
- zwei Bäder
- Badewanne und bodengleiche Dusche
- Handtuchheizkörper
- pflegeleichter Designboden
- Fußbodenheizung
- bodentiefe Fenster
- Schallschutzfenster
- Keller

Beschreibung

Dieses geräumige Familienzuhause bietet mit einer Terrasse und einem Garten den idealen Raum für Ihre Familienplanung.

Willkommen in Ihrer neuen Wohnung. Der freundliche Eingangsbereich führt direkt zum gemütlichen Wohnzimmer, wo Sie entspannte gemeinsame Abende genießen können. Die offene Küche lädt hier zum gemeinsamen Kochen ein und ist ein idealer Treffpunkt für Familie und Freunde. Ein separater Arbeitsbereich bietet Raum für Konzentration und Kreativität. Das Bad ist modern gestaltet und bietet eine bodengleiche Dusche. Die Terrasse und der großzügige Garten erweitern den Wohnraum ins Freie und bieten Platz für Erholung und Spiel.

Die Treppe führt Sie hinauf in Obergeschoss, wo Sie mit drei möglichen Schlafzimmern und einem weiteren Arbeitszimmer den idealen Rückzugsort für jedes Familienmitglied schaffen können. Das zweite Bad ermöglicht mit seiner Badewanne erholsame Stunden zum Feierabend. Abgerundet wird Ihr neues Zuhause durch den stilvollen und pflegeleichten Designboden.

Sonstiges

Festpreisgarantie für Ihre Planungssicherheit

Mit unserer Festpreisgarantie bleibt Ihr vertraglich vereinbarter Kaufpreis unverändert. Sie wählen Ihre Wunschimmobilie zu dem entsprechenden Kaufpreis, ohne versteckte Kosten. Selbst bei schwankenden Rohstoffpreisen behalten Sie von Anfang an finanzielle Klarheit und können mit einem sicheren Gefühl planen.

Der Finanzierungsrechner für Ihren Wohnkredit

Mit unserem Finanzierungsrechner kannst du schnell und bequem eine Finanzierung für deine Immobilie berechnen.

Finanzierungsbeispiel

Eigenkapital: 149.980 €
Sollzinsbindung: 10 Jahre
Tilgungsrate: 1 %
Monatsrate

2.524 €

Dieses Wohnbeispiel ist Teil des Bauvorhabens
Paulshöfe

Exposé/Preisliste anfordern
Pflichtfelder *

Wir behandeln deine Daten vertraulich. Mit dem Absenden erklärst du dich mit der Verarbeitung deiner Anfrage gemäß unserer Datenschutzerklärung und AGB für Verbraucher:innen einverstanden.

Anbieter