Dieses Wohnbeispiel ist Teil des Bauvorhabens Friedrichspark Villingen-Schwenningen

"Friedrichspark": Parkblick, sonniger Balkon, große bodentiefe Fenster, offene Küche, 1.-3.OG!

  • Effizienzhaus 55
  • GEG 2020
  • Provisionsfrei
  • Adresse
    Friedrich-Wilhelm-Straße 16, 78050 Villingen-Schwenningen
  • Preis
    490.220 €
  • Provision für Käufer
    Maklergebühren sind keine zu entrichten.
  • Zimmeranzahl
    4
  • Badezimmer
    1
  • Schlafzimmer
    3
  • Wohnfläche
    100,36 m2
  • Gesamtfläche
    100,36 m2
  • Balkon-Terrassen-Fläche
    12,45 m2
  • Baujahr
    2022
  • Tiefgaragen-Stellplatz
    28.500 €
  • Anz. Tiefgaragen-Stellplätze
    1
  • ID
    187693
  • Anbieter Objekt-ID
    672

Merkmale

  • Abstellraum
  • Befeuerung: Blockheizkraftwerk
  • Dusche
  • Fahrradraum
  • Fliesenboden
  • Fußbodenheizung
  • Gehobene Ausstattung
  • KFW55
  • Keller
  • Neubau
  • Parkettboden
  • Personenaufzug
  • Tiefgaragenstellplatz
  • Wasch-/Trockenraum
  • Zentralheizung

Dokumente

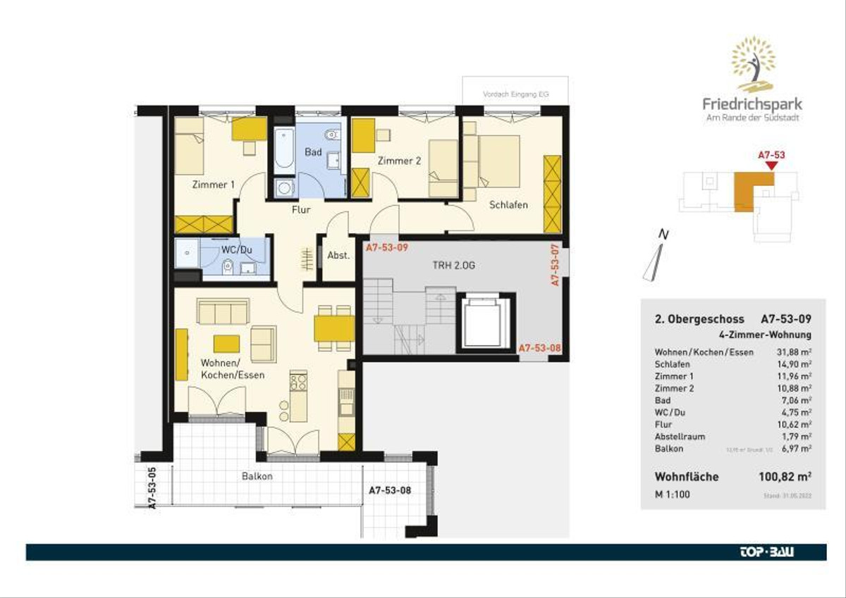
Grundriss 1.OG

Grundriss 2.OG

Lage

Auf der Karte anzeigen

Lage, Lage, Lage: Nicht nur Monopoly-Spieler wissen, dass diese als eine der wichtigsten Regeln in der Immobilienwelt gilt.

Viele Grün- und Freiflächen, die Nähe zur Villinger Innenstadt, sehr gute Anbindungen an das Busnetz sowie zu zentralen Verkehrsadern – das sind nur ein paar der Argumente, die für den Standort Friedrichspark sprechen. Wer die Natur liebt, gerne von der Haustüre weg ins Grüne joggen, spazieren oder Rad fahren geht, der wird diesen Ausgangspunkt lieben.

Urban und schick oder naturnah und ruhig? Wer künftig im Friedrichspark, am Rande der Südstadt zu Hause ist, der muss diese Entscheidung nicht treffen. Fazit: Das mit dem Finden der richtigen Lage, das haben wir schon für Sie erledigt.

Ausstattung

Technische Besonderheiten:

- Hocheffiziente Nahwärmeversorgung über die Stadtwerke VS in Form einer Wärmeerzeugungsanlage mit Holzkhackschnitzel und Gas
- Moderne Aufzugsanlage
- Überwiegend stufenlose Hauszugänge
- Extra breite Tiefgaragenstellplätze
- Fußbodenheizung mit Einzelraumregelung über Raumthermostat
- Türsprechanlage mit Kamera
- Rundumbetreuung durch einen Hausmeisterservice
- KfW Effizienzhaus 55 (GEG)


Architektur:

- Kleine Wohneinheit mit nur 7 oder 11 Wohnungen pro Hauseingang
- Verschiebbare Sicht- und Sonnenschutzelemente auf den Balkonen
- Sonniger Balkon mit ca. 13 m²
- Nach Süden terrassierte Massivbauweise in bewährter top-bau Qualität
- Lichtdurchflutete Wohnräume durch große, bodentiefe Fensterelemente
- Hochwertige Natursteinklinkerverkleidung im Erdgeschossbereich


Ausstattungsdetails

- Hochwertiger Eiche Echtholzparkett in allen Wohnräumen
- Elegante Keramikfliesen in den Bädern
- Fußbodenheizung mit Einzelraumregelung über Raumthermostat
- Elektrische Jalousien im Bereich Wohnen/Kochen/Essen
- Elektrische Rolläden in den Schlafräumen, Zimmern und Bädern
- Treppenhaus mit hochwertigem Bodenbelag aus Naturstein
- Geräumige Kellerräume, gemeinschaftlicher Fahrrad- und Trockenraum

Beschreibung

Das Mehrfamilienhaus A7 entsteht in bevorzugter Lage am südwestlichen Parkrand des Friedrichsparks.

Diese eleganten 4-Zimmer-Komfortwohnungen sind stufenlos zugänglich (auch über die Tiefgarage) und verfügen über jeweils einen großzügigen Südwest-Balkon, eine offene Wohnküche (auch geschlossen möglich) sowie über ein geräumiges Tageslichtbad mit Badewanne und ein separates WC mit Dusche.

Hell und freundlich werden die Wohneinheiten durch große Fensterelemente, die optisch schöne Akzente setzen. Praktisch auch der Abstellraum, der Ordnung einfach macht.

Zentral gelegen und mit Blick in die Parkanlage werden hier die Vorzüge urbanen Lebens mit den Wünschen nach einem grünen Zuhause vereint. Anspruchsvolles und zeitgemäßes Design, hochwertige Materialien, moderne Technik und eine energetisch zukunftsweisende KfW-Effizienzhaus 55 Bauweise (GEG) sichern Ihnen viele Jahre eine zuverlässige und wirtschaftliche Immobilie.

Mit den Bauarbeiten haben wir bereits begonnen. Selbstverständlich können derzeit noch individuelle Planungs -und Ausstattungswünsche berücksichtigt werden.

Energienachweis

Energieausweistyp: Bedarfsausweis
Gültigkeit: 22.03.2032
Endenergiebedarf: 48,80
Energieklasse: A
48,80 kWh/(m²*a)
Energieeffizienzklasse A
  • A+
  • A
  • B
  • C
  • D
  • E
  • F
  • G
  • H
  • 0
  • 25
  • 50
  • 75
  • 100
  • 125
  • 150
  • 175
  • 200
  • 225
  • > 250

Sonstiges

Die Wohnung befindet sich im 1. Obergeschoss und kann im 2. und 3. Obergeschoss zu folgenden Konditionen erworben werden:

Wohnung A7-53-06 | 100,36 m² | 1. Obergeschoss | Kaufpreis EUR 490.220,-

Wohnung A7-53-09 | 100,82 m² | 2. Obergeschoss | Kaufpreis EUR 502.100,-

Wohnung A7-53-12 | 100,82 m² | 3. Obergeschoss | Kaufpreis EUR 512.170,-


Kaufpreis Tiefgaragen-Stellplatz inkl. Lademanagement für E-Mobilität: ab EUR 28.500,-

Fertigstellung:
Die Bauarbeiten sind nahezu fertiggestellt. Der Bezug kann somit kurzfristig (ca. 2-3 Monate ab Kauf) erfolgen.

Finanzierung:
Eine Finanzierung ohne bzw. mit geringem Eigenkapital ist ggfs. auch möglich.

Auf Wunsch unterbreiten wir Ihnen gerne ein professionelles, individuelles und kostenloses Finanzierungsangebot.

Der Finanzierungsrechner für Ihren Wohnkredit

Mit unserem Finanzierungsrechner kannst du schnell und bequem eine Finanzierung für deine Immobilie berechnen.

Finanzierungsbeispiel

Eigenkapital: 98.044 €
Sollzinsbindung: 10 Jahre
Tilgungsrate: 1 %
Monatsrate

1.601 €

Dieses Wohnbeispiel ist Teil des Bauvorhabens
Friedrichspark Villingen-Schwenningen

Friedrichspark Villingen-Schwenningen - Wohnung

"Friedrichspark": Großer Südwestbalkon mit 17 m², Tageslichtbad, WC mit Dusche, 1.-3.OG, KfW 55!

Preis

422.300 €

Wohnfläche

81,79 m2

Zimmer

3 Zi.

Friedrichspark Villingen-Schwenningen - Wohnung

"Friedrichspark": Südwesterrasse mit 25 m², Tageslichtbad, WC mit Dusche, 30 m² Privatgarten, KfW

Preis

431.050 €

Wohnfläche

85,22 m2

Zimmer

3 Zi.

Friedrichspark Villingen-Schwenningen - Wohnung

"Friedrichspark": Große Südwesterrasse mit 26 m², zwei Tageslichtbäder, 94 m² Privatgarten, KfW

Preis

438.400 €

Wohnfläche

86,68 m2

Zimmer

3 Zi.

Friedrichspark Villingen-Schwenningen - Wohnung

"Friedrichspark": Großer sonniger Südwestbalkon mit 24 m², zwei Tageslichtbäder, 1.-2.OG, KfW 55

Preis

449.500 €

Wohnfläche

87,08 m2

Zimmer

3 Zi.

Friedrichspark Villingen-Schwenningen - Wohnung

"Friedrichspark": Parkblick, große Südwesterrasse, Tageslichtbad, WC mit Dusche, Privatgarten!

Preis

453.680 €

Wohnfläche

94,9 m2

Zimmer

3 Zi.

Exposé/Preisliste anfordern
Pflichtfelder *

Wir behandeln deine Daten vertraulich. Mit dem Absenden erklärst du dich mit der Verarbeitung deiner Anfrage gemäß unserer Datenschutzerklärung und AGB für Verbraucher:innen einverstanden.

Anbieter

top-bauträger gmbh

St. Nepomuk-Straße 4, 78048 Villingen-Schwenningen

top-bauträger gmbh