Dieses Wohnbeispiel ist Teil des Bauvorhabens Friedrichspark Villingen-Schwenningen

"Friedrichspark": Südwesterrasse mit 25 m², Tageslichtbad, WC mit Dusche, 30 m² Privatgarten, KfW

  • Effizienzhaus 55
  • GEG 2020
  • Provisionsfrei
  • Adresse
    Friedrich-Wilhelm-Straße 16, 78050 Villingen-Schwenningen
  • Wohntyp
    Erdgeschosswohnung
  • Preis
    431.050 €
  • Provision für Käufer
    Maklergebühren sind keine zu entrichten.
  • Zimmeranzahl
    3
  • Badezimmer
    2
  • Schlafzimmer
    2
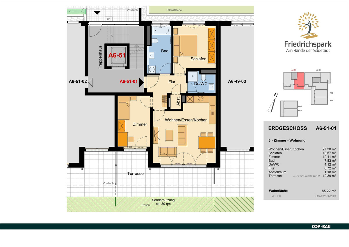
  • Wohnfläche
    85,22 m2
  • Gesamtfläche
    85,22 m2
  • Balkon-Terrassen-Fläche
    24,79 m2
  • Baujahr
    2023
  • Tiefgaragen-Stellplatz
    26.200 €
  • Anz. Tiefgaragen-Stellplätze
    1
  • ID
    234615
  • Anbieter Objekt-ID
    716

Merkmale

  • Abstellraum
  • Badewanne
  • Befeuerung: Blockheizkraftwerk
  • Dusche
  • Fahrradraum
  • Fliesenboden
  • Fußbodenheizung
  • Garten bzw. Gartennutzung
  • Gehobene Ausstattung
  • Gäste-WC
  • KFW55
  • Keller
  • Neubau
  • Parkettboden
  • Personenaufzug
  • Tiefgaragenstellplatz
  • Wasch-/Trockenraum
  • Zentralheizung

Dokumente

Grundriss

Lage

Auf der Karte anzeigen

Lage, Lage, Lage: Nicht nur Monopoly-Spieler wissen, dass diese als eine der wichtigsten Regeln in der Immobilienwelt gilt.

Viele Grün- und Freiflächen, die Nähe zur Villinger Innenstadt, sehr gute Anbindungen an das Busnetz sowie zu zentralen Verkehrsadern – das sind nur ein paar der Argumente, die für den Standort Friedrichspark sprechen. Wer die Natur liebt, gerne von der Haustüre weg ins Grüne joggen, spazieren oder Rad fahren geht, der wird diesen Ausgangspunkt lieben.

Urban und schick oder naturnah und ruhig? Wer künftig im Friedrichspark, am Rande der Südstadt zu Hause ist, der muss diese Entscheidung nicht treffen. Fazit: Das mit dem Finden der richtigen Lage, das haben wir schon für Sie erledigt.

Ausstattung

Technische Besonderheiten:

- Hocheffiziente Nahwärmeversorgung über die Stadtwerke VS in Form einer Wärmeerzeugungsanlage mit Holzkhackschnitzel und Gas
- Moderne Aufzugsanlage
- Stufenlose Hauszugänge
- Extra breite Tiefgaragenstellplätze
- Fußbodenheizung mit Einzelraumregelung über Raumthermostat
- Türsprechanlage mit Kamera
- Rundumbetreuung durch einen Hausmeisterservice
- KfW Effizienzhaus 55 (GEG): Niedrige Energie- und Nebenkosten


Architektur:

- Kleine Wohneinheit mit nur 9 oder 14 Wohnungen pro Hauseingang
- Verschiebbare Sicht- und Sonnenschutzelemente auf den Balkonen
- Große Südwest-Terrasse mit ca. 25 m²
- Privatgarten mit rund 30 m²
- Nach Süden terrassierte Massivbauweise in bewährter top-bau Qualität
- Lichtdurchflutete Wohnräume durch große, bodentiefe Fensterelemente
- Hochwertige Natursteinklinkerverkleidung im Erdgeschossbereich


Ausstattungsdetails

- Hochwertiger Eiche Echtholzparkett in allen Wohnräumen
- Elegante Keramikfliesen in den Bädern
- Tageslichtbad mit Badewanne
- Separates Gäste-WC mit Dusche
- Fußbodenheizung mit Einzelraumregelung über Raumthermostat
- Elektrische Jalousien im Bereich Wohnen/Kochen/Essen
- Elektrische Rolläden in den Schlafräumen, Zimmern und Bädern
- Treppenhaus mit hochwertigem Bodenbelag aus Naturstein
- Geräumige Kellerräume, gemeinschaftlicher Fahrrad- und Trockenraum

Beschreibung

Das Mehrfamilienhaus A6 entsteht in bevorzugter Lage am westlichen Rand des Friedrichsparks.

Diese elegante 3-Zimmer-Komfortwohnung ist stufenlos zugänglich (auch über die Tiefgarage) und verfügt über eine große Südwest-Terrasse mit Blick in die idyllisch begrünte Außenanlage, einen eigenen Privatgarten mit ca. 30 m², eine offene Wohnküche sowie über ein geräumiges Tageslichtbad mit Badewanne und ein separates Gäste-WC mit Dusche.

Hell und freundlich wird die Wohneinheit durch große Fensterelemente, die optisch schöne Akzente setzen. Praktisch auch der Abstellraum, der Ordnung einfach macht.

Zentral gelegen in idyllischer Umgebung werden hier die Vorzüge urbanen Lebens mit den Wünschen nach einem grünen Zuhause vereint. Anspruchsvolles und zeitgemäßes Design, hochwertige Materialien, moderne Technik und eine energetisch zukunftsweisende KfW-Effizienzhaus 55 Bauweise (GEG) sichern Ihnen viele Jahre eine zuverlässige und wirtschaftliche Immobilie.

Mit den Bauarbeiten haben wir bereits begonnen. Selbstverständlich können derzeit noch individuelle Planungs -und Ausstattungswünsche berücksichtigt werden.

Energienachweis

Energieausweistyp: Bedarfsausweis
Gültigkeit: 29.06.2033
Endenergiebedarf: 48,40
Energieklasse: A
48,40 kWh/(m²*a)
Energieeffizienzklasse A
  • A+
  • A
  • B
  • C
  • D
  • E
  • F
  • G
  • H
  • 0
  • 25
  • 50
  • 75
  • 100
  • 125
  • 150
  • 175
  • 200
  • 225
  • > 250

Sonstiges

Die Wohnung befindet sich im Erdgeschoss.

Kaufpreis Tiefgaragen-Stellplatz inkl. Lademanagement für E-Mobilität (ohne Wallbox): ab EUR 26.200,-

Fertigstellung:
Mit den Bauarbeiten haben wir bereits begonnen. Die Bezugsfertigkeit ist für Ende 2024 vorgesehen.

Finanzierung:
Auf Wunsch unterbreiten wir Ihnen gerne ein professionelles, individuelles und kostenloses Finanzierungsangebot.

Der Finanzierungsrechner für Ihren Wohnkredit

Mit unserem Finanzierungsrechner kannst du schnell und bequem eine Finanzierung für deine Immobilie berechnen.

Finanzierungsbeispiel

Eigenkapital: 86.210 €
Sollzinsbindung: 10 Jahre
Tilgungsrate: 1 %
Monatsrate

1.409 €

Dieses Wohnbeispiel ist Teil des Bauvorhabens
Friedrichspark Villingen-Schwenningen

Friedrichspark Villingen-Schwenningen - Wohnung

"Friedrichspark": Großer Südwestbalkon mit 17 m², Tageslichtbad, WC mit Dusche, 1.-3.OG, KfW 55!

Preis

422.300 €

Wohnfläche

81,79 m2

Zimmer

3 Zi.

Friedrichspark Villingen-Schwenningen - Wohnung

"Friedrichspark": Große Südwesterrasse mit 26 m², zwei Tageslichtbäder, 94 m² Privatgarten, KfW

Preis

438.400 €

Wohnfläche

86,68 m2

Zimmer

3 Zi.

Friedrichspark Villingen-Schwenningen - Wohnung

"Friedrichspark": Großer sonniger Südwestbalkon mit 24 m², zwei Tageslichtbäder, 1.-2.OG, KfW 55

Preis

449.500 €

Wohnfläche

87,08 m2

Zimmer

3 Zi.

Friedrichspark Villingen-Schwenningen - Wohnung

"Friedrichspark": Parkblick, große Südwesterrasse, Tageslichtbad, WC mit Dusche, Privatgarten!

Preis

453.680 €

Wohnfläche

94,9 m2

Zimmer

3 Zi.

Friedrichspark Villingen-Schwenningen - Wohnung

"Friedrichspark": Große Südwesterrasse, Tageslichtbad, WC mit Dusche, Privatgarten mit 17 m², KfW

Preis

484.200 €

Wohnfläche

95,75 m2

Zimmer

3 Zi.

Exposé/Preisliste anfordern
Pflichtfelder *

Wir behandeln deine Daten vertraulich. Mit dem Absenden erklärst du dich mit der Verarbeitung deiner Anfrage gemäß unserer Datenschutzerklärung und AGB für Verbraucher:innen einverstanden.

Anbieter

top-bauträger gmbh

St. Nepomuk-Straße 4, 78048 Villingen-Schwenningen

top-bauträger gmbh