Dieses Wohnbeispiel ist Teil des Bauvorhabens Hiltmannsdorfer Straße

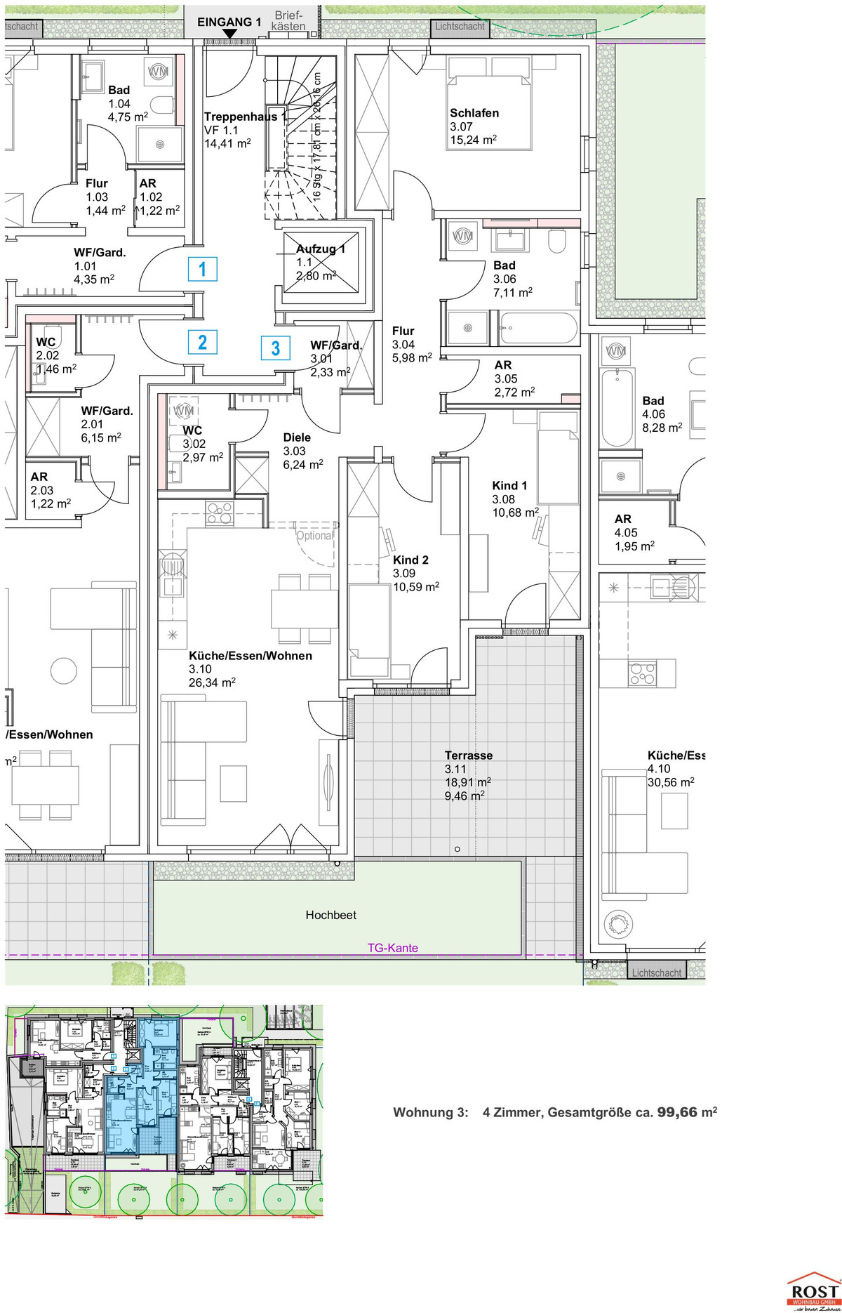
Wohnung 3

  • Effizienzhaus 40
  • Energieeffizienzklasse A
  • GEG 2024
  • Adresse
    Hiltmannsdorfer Straße 20 und 22, 90768 Fürth / Burgfarrnbach
  • Wohntyp
    Erdgeschosswohnung
  • Preis
    643.000 €
  • Zimmeranzahl
    4
  • Wohnfläche
    99,66 m2
  • ID
    293015

Lage

Auf der Karte anzeigen

Der Finanzierungsrechner für Ihren Wohnkredit

Mit unserem Finanzierungsrechner kannst du schnell und bequem eine Finanzierung für deine Immobilie berechnen.

Finanzierungsbeispiel

Eigenkapital: 128.600 €
Sollzinsbindung: 10 Jahre
Tilgungsrate: 1 %
Monatsrate

2.091 €

Dieses Wohnbeispiel ist Teil des Bauvorhabens
Hiltmannsdorfer Straße

Exposé/Preisliste anfordern
Pflichtfelder *

Wir behandeln deine Daten vertraulich. Mit dem Absenden erklärst du dich mit der Verarbeitung deiner Anfrage gemäß unserer Datenschutzerklärung und AGB für Verbraucher:innen einverstanden.

Anbieter