RESERVIERT

Dieses Wohnbeispiel ist Teil des Bauvorhabens Hiltmannsdorfer Straße

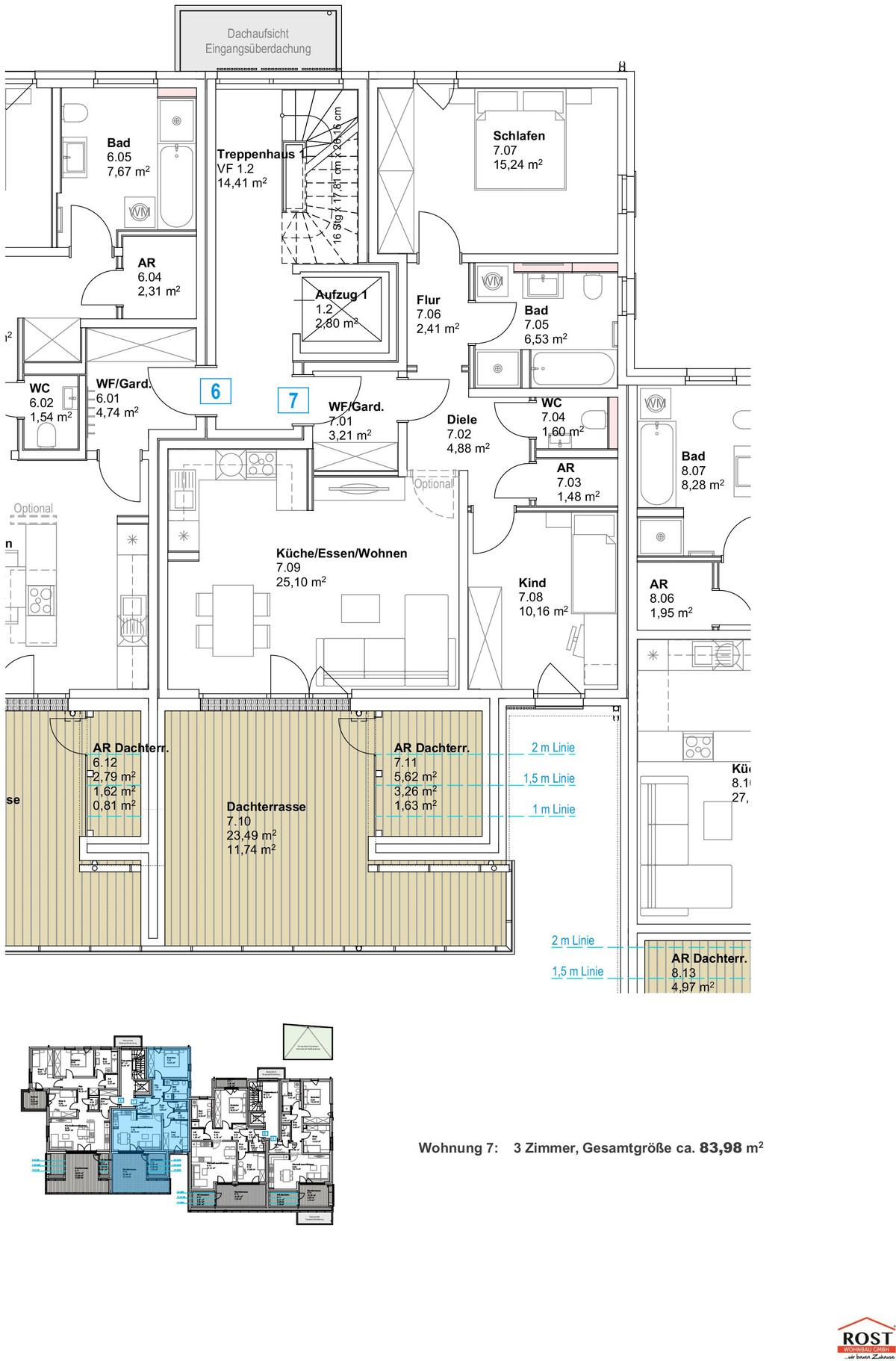
Wohnung 7

  • Effizienzhaus 40
  • Energieeffizienzklasse A
  • GEG 2024
  • Adresse
    Hiltmannsdorfer Straße 20 und 22, 90768 Fürth / Burgfarrnbach
  • Wohntyp
    Etagenwohnung
  • Preis
    Auf Anfrage
  • Etage
    1. OG
  • Zimmeranzahl
    3
  • Wohnfläche
    83,98 m2
  • ID
    293019

Lage

Auf der Karte anzeigen

Der Finanzierungsrechner für Ihren Wohnkredit

Mit unserem Finanzierungsrechner kannst du schnell und bequem eine Finanzierung für deine Immobilie berechnen.

Finanzierungsbeispiel

Eigenkapital: 108.400 €
Sollzinsbindung: 10 Jahre
Tilgungsrate: 1 %
Monatsrate

1.740 €

Dieses Wohnbeispiel ist Teil des Bauvorhabens
Hiltmannsdorfer Straße

Anbieter