Rost Wohnbau GmbH

Hiltmannsdorfer Straße

Neubau von 13 Eigentumswohnungen

  • Effizienzhaus 40
  • Energieeffizienzklasse A
  • GEG 2024

Projektdetails

  • Hiltmannsdorfer Straße 20 und 22, 90768 Fürth / Burgfarrnbach
  • Eigentumswohnung
  • 333.000 € - 709.000 €
  • 2 - 4 Zimmer
  • 52,37 - 109,97 m2
  • Auf Anfrage
  • 13
  • Gehoben
  • 27923

Merkmale

  • Aufzug
  • Balkon
  • Barrierearm
  • Dachterrasse
  • Fußbodenheizung
  • Kontrollierte Wohnraumlüftung
  • Luft-Wasser-Wärmepumpe
  • PKW-Stellplätze
  • Solaranlage
  • Terrasse
  • Tiefgarage
  • Video-Gegensprechanlage

Lage

Auf der Karte anzeigen

Weitere Infos

KfW-Effizienzhaus 40 - förderfähig


Kaufpreis zzgl. Stellplatz
TG-Kfz.-Stellplatz: 25.000 - 29.000 €
Kfz.-Außenstellplatz: 16.000 €

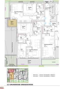
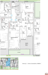
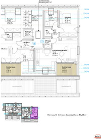
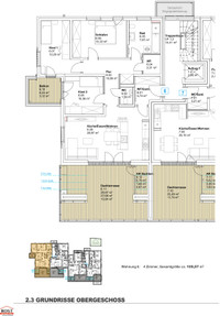
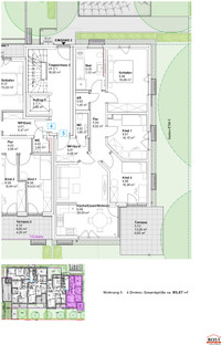
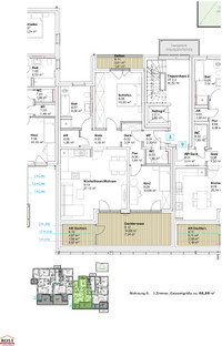
Wohnbeispiele

Exposé/Preisliste anfordern
Pflichtfelder *

Anzahl der Zimmer

Wir behandeln deine Daten vertraulich. Mit dem Absenden erklärst du dich mit der Verarbeitung deiner Anfrage gemäß unserer Datenschutzerklärung und AGB für Verbraucher:innen einverstanden.

Projektbeschreibung

Bild Neubau Eigentumswohnungen Hiltmannsdorfer Straße Fürth: Visualisierung eines Mehrfamilienhauses

Bauprojekt
Hiltmannsdorfer Straße Fürth

Mehrfamilienhaus mit 13 Eigentumswohnungen

Das Baugrundstück liegt im Westen von Fürth in sehr guter Wohnlage, im beliebten Stadtteil Burgfarrnbach an der Hiltmannsdorfer Straße.

Die Hiltmannsdorfer Straße selbst ist eine Wohnstraße und unweit der Ortsmitte Burgfarrnbachs gelegen. Das nach Süd-Osten orientierte Grundstück grenzt mit seiner Süd-Ost-Seite an die Hiltmannsdorfer Straße, mit der Süd-West-Seite, Nord-West- und Nord-Ost-Seite an die Nachbarbebauung. Die gute Infrastruktur sowie die hervorragende Verkehrsanbindung zeichnen das gefragte Wohngebiet obendrein aus. Zum Beispiel:

ÖFFENTLICHE VERKEHRSMITTEL (ÖPNV)
Nur ca. 200 Meter zu Fuß zum städtischen Bus mit Verbindung in alle Stadtteile bzw. an die U-Bahn-Haltestelle Fürth – Klinikum, sowie an den DB-Haltepunkt Klinikum (S-Bahn). Somit besteht der Anschluss an das Nürnberg-Fürther U-Bahn- und Straßenbahnnetz.

(S-Bahn) und somit besteht der Anschluss an das Nürnberg-Fürther U-Bahn- und Straßenbahnnetz.

DEUTSCHE BAHN
Entfernung zum nächstgelegenen Bahnhof (Haltepunkt Burgfarrnbach) nur ca. 600m (Bahnlinie Nürnberg – Würzburg) in ca. 8 Gehminuten.

KRAFTFAHRZEUG
Über die Würzburger Straße erfolgt (in ca. 3km Entfernung) direkte Anbindung an die Südwesttangente (Schnellstraße) und über diese an sämtliche Nord-Süd und Ost-West-Autobahnen. Die sonstigen Straßenverbindungen nach Fürth, Nürnberg oder Erlangen usw. sind in ausreichendem Maße vorhanden und gut ausgebaut. So ist Fürth bei normalen Verkehrsverhältnissen in etwa 10, Nürnberg in ca. 25, und Erlangen in etwa 20 Autominuten zu erreichen (jeweils Zentrum).

FAHRRAD
Mit dem Fahrrad können in ca. 850m Entfernung Supermarkt, Bäcker/Metzger in ca. 200m (Ortsmitte) und in 600m den DB-Haltepunkt Burgfarrnbach erreicht werden. Restaurants und weitere Gastronomie sind im näheren Umkreis gut erreichbar, der Stadtwald mit vielen Radrouten ist ca. 2,0km entfernt.

Auch die umliegende Infrastruktur ist als sehr gut zu bezeichnen. So sind in der näheren Umgebung sämtliche Läden des täglichen Bedarfs vorhanden, sowie Ärzte, Zahnärzte, Apotheke, Grundschule, Banken usw. Sämtliche weiterführende Schulen und die üblichen Einrichtungen sind in Fürth vorhanden. Nähere Informationen über Fürth finden Sie unter www.stadt-fuerth.de.

Ein gut ausgebautes Netz an Angeboten für Sport, Hobby, Kultur, Gesellschaft, Vereinsleben, Gastlichkeit usw. ist in unmittelbarer Nähe und in Fürth ebenfalls gewährleistet. Die für die Naherholung notwendigen Flächen und Gebiete sind in kürzester Entfernung mehr als ausreichend vorhanden, wie z.B. Schmalholz, Zennwald, Solarberg, Stadtwald Fürth, Farrnbachtal, Regnitztal, Main-Donau-Kanal usw.

Das Baugrundstück selbst ist so ausgerichtet, dass eine optimale Besonnung den ganzen Tag über gewährleistet ist (Südlage). Die nord-, ost- und westseitig anschließende, wie auch die umliegende Bebauung ist im wesentlichen 2-3 geschossig.

Bild Neubau Eigentumswohnungen Hiltmannsdorfer Straße Fürth: Visualisierung eines Mehrfamilienhauses

Objekt und Ausstattung

Überblick

Errichtung von 13 Eigentumswohnungen mit Tiefgarage und Kfz.-Einzelstellplatz in Fürth-Burgfarrnbach, Hiltmannsdorfer Straße, Gemarkung Burgfarrnbach, Flur-Nr. 575.

  • (Mind.) Niedrig-Energie A Gebäude (GEG 2020/24)
  • Zukunftsorientierte, energiesparende, barrierearme Bauweise
  • Luft-Wasser-Wärmepumpe, Split-Aufstellung Warmwasser-Heizungsanlage mit Solar-Kollektoren für Warmwasser
  • Kontrollierte Wohnraumlüftung mit Wärmerückgewinnung
  • Fußbode­nheizung in den Wohnungen
  • großzügige Mehr-Personen-Aufzüge
  • Klingel-, Sprech- und Videoanlage mit Farbbildschirm
  • Tiefgarage mit 12 Plätzen und Kfz-Einzelstellplatz

Alle Zugänge der Wohnungen werden barrierefrei hergestellt, mit Ausnahme von 2 cm Schwelle an den Wohnungseingangstüren und an den Balkon-/EG-Terrassenaustritten. Die Wohnungen 10, 11, 12 und 13 (DG) sowie 6, 7, 8 und 9 (OG) haben zur Dachterrasse eine Stufe von mind. 15cm

Bild Neubau Eigentumswohnungen Hiltmannsdorfer Straße Fürth: Visualisierung eines Mehrfamilienhauses

Die Lage

Stadt Fürth - Burgfarrnbach

Burgfarrnbach selbst ist älter als Nürnberg oder Fürth: Die erste urkundliche Erwähnung ist aus dem Jahre 903. Gesichert ist es im Jahr 1287 erwähnt worden. Historisch gewachsen gehört Burgfarrnbach als Stadtteil seit 1923 zur Stadt Fürth.

Das heutige Schloss ist in den Jahren 1830 - 1834 entstanden - als Ersatzneubau für das abgebrochene Wasserschloss. Mit der Eingemeindung Burgfarrnbachs hat schliesslich die Stadt Fürth auch ein Schloss "erhalten", das diese 1968 gekauft hat. Die Stadt Fürth selbst hatte vorher kein Schloss o. ä. vorzuweisen.

Die St. Johannis Kirche mit ihrem 68m hohen Turm in Burgfarrnbach ist weit über dessen Grenzen hinaus zu sehen. Sie ist ein Wahrzeichen der historischen ca. 730 Jahre alten Kirche (in etwa heutiges Erscheinungsbild).

Burgfarrnbach selbst hat viel zu bieten: Die Naherholungsgebiete werden Sie (z. B. dem wunderschönen Stadtwald, dem Farrnbachtal, dem Regnitztal, usw.) zu ausgedehnten Spaziergängen einladen. Für den täglichen Bedarf ist alles in mittelbarer Nähe. Auch Schulen, Banken oder einfach nur die Bushaltestelle... es ist alles zu Fuß erreichbar.

Auch ein vielfältiges Vereinsleben ist in Burgfarrnbach vorhanden. Gemütliche Gaststätten, Biergarten und ein sehenswerter Schlosspark geben dem Ort echte Lebensqualität. Sowohl zur Innenstadt von Fürth als auch nach Nürnberg und Erlangen ist es nicht weit. Sehen Sie sich um... die Lage wird Sie überzeugen!

Logo Neubauprojekt Hiltmannsdorfer Straße Fürth

Rechtlicher Hinweis: Die Informationen zum Bauvorhaben sind ein redaktioneller Beitrag der neubau kompass AG. Er dient ausschließlich Informationszwecken und stellt kein Angebot im rechtlichen Sinne dar. Die angebotenen Inhalte werden von der neubau kompass AG nach § 2 TMG veröffentlicht und kontrolliert. Informationen zu einer etwaigen Provisionspflicht sind beim Anbieter zu erfragen. Alle Angaben, insbesondere zu Preisen, Wohnflächen, Ausstattung und Bezugsfertigkeit sind ohne Gewähr. Irrtum vorbehalten.

Anbieter

Weitere Projekte in der Nähe