Donhauser Massivbau

Kreuther Höfe

Neubau von 6 Eigentumswohnungen

  • Effizienzhaus 40

Projektdetails

  • Kreuther Straße 16-18, 93170 Bernhardswald
  • Eigentumswohnung
  • 422.000 € - 435.000 €
  • 3 Zimmer
  • 81 - 91 m2
  • 1. Quartal 2027
  • 6
  • Gehoben
  • 27850

Merkmale

  • Balkon
  • Carport
  • Garage
  • Garten
  • Terrasse

Lage

Auf der Karte anzeigen
Anbieter kontaktieren
Pflichtfelder *

Wir behandeln deine Daten vertraulich. Mit dem Absenden erklärst du dich mit der Verarbeitung deiner Anfrage gemäß unserer Datenschutzerklärung und AGB für Verbraucher:innen einverstanden.

Projektbeschreibung

Bild Neubauprojekt Kreuther Höfe, Bernhardswald

KREUTHER HÖFE

Eigentumswohnungen in der Kreuther Straße
93170 Bernhardswald

Es gibt nichts Schöneres, als das Gefühl, am richtigen Ort angekommen zu sein. Einem Zuhause wie in den Kreuther Höfen. Inmitten der wunderschönen Natur des Bayerischen Vorwaldes genießen Sie hier ein ruhiges Wohnumfeld mit vielfältigen Freizeitmöglichkeiten direkt vor der Haustür.

Hier entstehen für Sie helle und großzügig gestaltete Wohnungen. Zusammen mit weitläufigen Grünflächen bietet das Grundstück alle Vorzüge eines Eigenheims – und das nur wenige Autominuten von der Stadt Regensburg entfernt.

Und während Sie auf den kommenden Seiten Ihr neues Lebenszentrum entdecken, arbeitet mit der Firma Donhauser ein erfahrenes Planungsteam an der Verwirklichung Ihres neuen Zuhauses.

Bild Neubauprojekt Kreuther Höfe, Bernhardswald

Einziehen und wohlfühlen

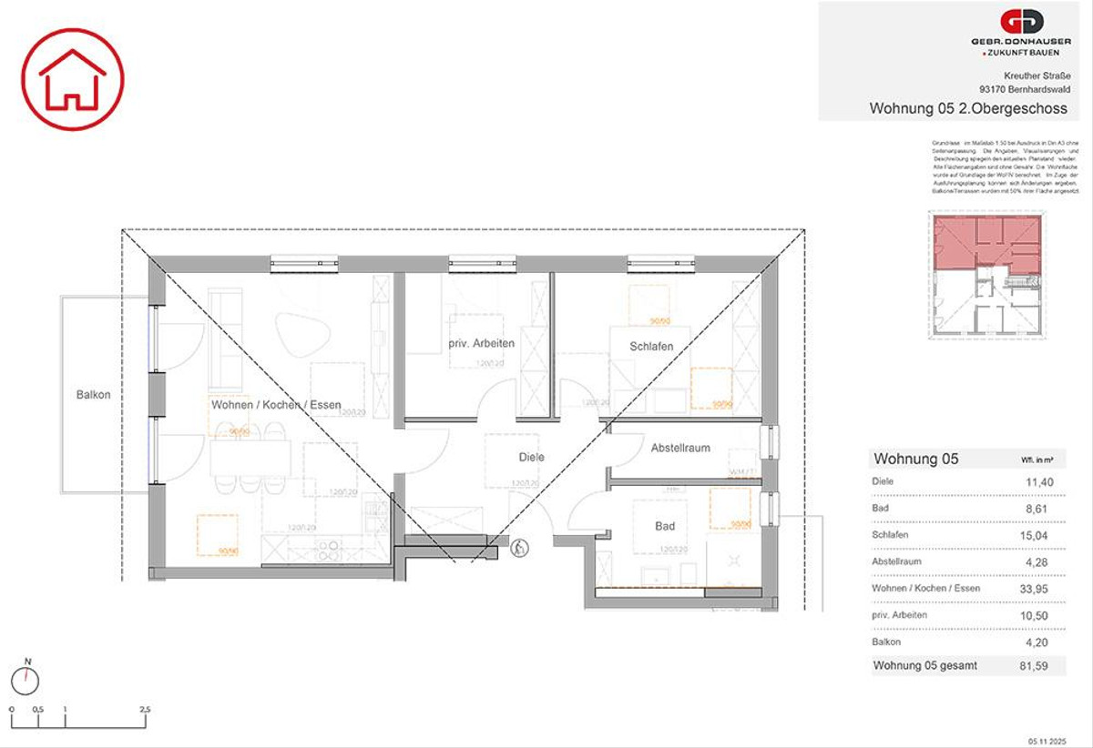
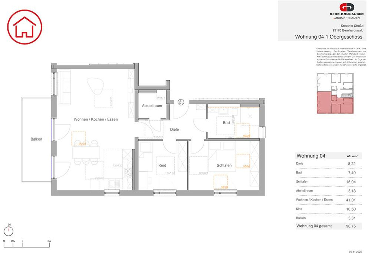
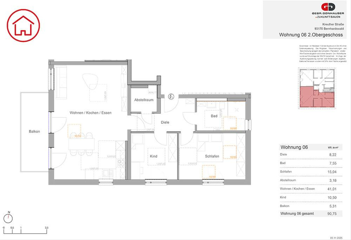
Wohngrundrisse

Aufgeteilt auf drei Ebenen bietet Ihnen das Haus sechs Wohnungen, ausgestattet mit modern geschnittenen Wohnbereichen ergänzt durch großzügige Fensterflächen, die jederzeit für maximales Tageslicht in allen Räumen sorgen.

Erdgeschoss
  • Zwei Wohnungen
    81.83 m² - 91.20 m²
1. OBERGESCHOSS
  • Zwei Wohnungen
    81.59 m² - 90.75 m²
2. OBERGESCHOSS
  • Zwei Wohnungen
    87.98 m² - 90.81 m²
Bild Neubauprojekt Kreuther Höfe, Bernhardswald

Eine Gemeinde mit Mittelalterlicher Vergangenheit

Eine Investition in die Zukunft.

Eingebettet in die Wälder des Bayerischen Vorwaldes verbindet Bernhardswald historische Wurzeln mit modernem Lebensgefühl. Erste Siedlungen entstanden hier bereits im Mittelalter und bis heute prägt die naturnahe Umgebung den besonderen Charakter der Gemeinde. Gleichzeitig profitieren die Bewohner von der unmittelbaren Nähe zur Stadt Regensburg – einer attraktiven Stadt, die ihre wirtschaftliche Bedeutung mit kultureller und historischer Schönheit vereint.

Neben vielfältigen Freizeit- und Erholungsmöglichkeiten bietet Bernhardswald eine solide Infrastruktur mit Kindergärten, Grundschulen, Ärzten und Einkaufsmöglichkeiten. Ein aktives Vereinsleben und ein lebendiges Miteinander tragen zu einem hohen Maß an Lebensqualität für Familien, Paare und Senioren bei.

Für Kapitalanleger ist Bernhardswald besonders interessant: Die stetige Nachfrage nach Wohnraum im Regensburger Umland sorgt für Wertbeständigkeit und attraktive Vermietungschancen. Neue Wohngebiete und Investitionen in die digitale Infrastruktur machen die Gemeinde zudem fit für die Zukunft

Rechtlicher Hinweis: Die Informationen zum Bauvorhaben sind ein redaktioneller Beitrag der neubau kompass AG. Er dient ausschließlich Informationszwecken und stellt kein Angebot im rechtlichen Sinne dar. Die angebotenen Inhalte werden von der neubau kompass AG nach § 2 TMG veröffentlicht und kontrolliert. Informationen zu einer etwaigen Provisionspflicht sind beim Anbieter zu erfragen. Alle Angaben, insbesondere zu Preisen, Wohnflächen, Ausstattung und Bezugsfertigkeit sind ohne Gewähr. Irrtum vorbehalten.

Anbieter

Donhauser Massivbau

Ettmanndorfer Straße 47, 92421 Schwandorf

Donhauser Massivbau

Weitere Projekte in der Nähe